Posts

How Existing Building Documentation Is Created from Laser Scanning
10.04.2026
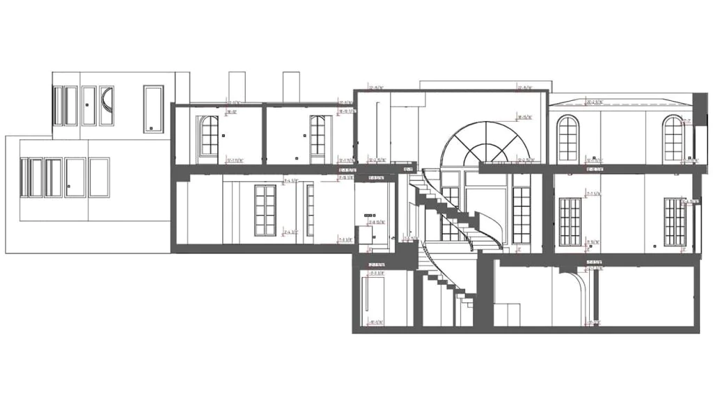
Accurate existing building documentation is the foundation of renovation, reconstruction, retrofit, and technical upgrade projects. Before architects, engineers, or contractors can move into design and ...
Architectural Documentation of Heritage Buildings with 3D Laser Scanning
06.04.2026
Architectural documentation of heritage buildings is the process of recording the geometry, structure, visible condition, and key architectural features of historic properties in a form ...
What Is HBIM and How It Is Used for Historic Buildings
30.03.2026
HBIM, or Historic Building Information Modeling, is a digital workflow used to document, analyze, model, and manage historic buildings through structured BIM-based methods. Unlike conventional ...

How Point Clouds Are Used in Architecture
23.03.2026
Point clouds have become one of the most valuable data sources in modern architectural practice. In projects involving existing buildings, renovation, adaptive reuse, restoration, or ...

Benefits of Using Revit MEP for BIM Coordination and Engineering Design
16.03.2026
Modern construction and engineering projects involve increasingly complex building systems. Mechanical, electrical, and plumbing infrastructure must be designed, coordinated, and installed with high precision. This ...

BIM Model Audit: What to Check
06.03.2026
Building Information Modeling has transformed the architecture, engineering, and construction industry by enabling detailed digital representations of buildings and infrastructure. Modern BIM models integrate architectural, ...

How Point Clouds Improve HVAC and Electrical BIM Coordination
02.03.2026
HVAC and electrical system coordination becomes significantly more reliable when design teams work from verified field data rather than assumptions. In renovation and retrofit environments, ...

Using Point Clouds for MEP BIM Modeling
28.02.2026
Modern building engineering increasingly relies on point clouds for MEP BIM modeling to ensure precision, coordination, and constructability. As projects become more complex—especially in ...

When Do You Need 3D Building Scanning in Construction Projects? Use Cases & Benefits
27.02.2026
In modern construction, precision is no longer optional. 3D building scanning in construction has become an essential tool for architects, engineers, and contractors who need ...

How LiDAR Drone Mapping Works?
25.02.2026
LiDAR drone mapping is a modern surveying method that uses unmanned aerial vehicles (UAVs) equipped with laser scanners to create highly accurate 3D representations of ...

Why Choosing the Right 3D Scanning Provider Matters for Construction Projects in New York
21.02.2026
Choosing the right partner for your project starts with understanding how to choose a 3D scanning company that meets your technical, scheduling, and documentation needs. ...

Laser Scanning Workflow from Site to Point Cloud
19.02.2026
The laser scanning workflow is a structured and highly technical process that transforms raw field measurements into a precise digital model. A well-executed 3D laser ...

Digital Twin: Insights from Dubai and the Practical Roadmap to Implementation
16.02.2026
At the 5th Annual Digital Twin Conference 2026 in Dubai, government representatives, asset owners, BIM leaders, surveyors, and technology vendors gathered to discuss one central question: ...

How Point Cloud Registration Works
14.02.2026
Understanding how point cloud registration works is fundamental for any professional involved in 3D laser scanning, Scan-to-BIM, renovation design, or digital construction workflows. Without ...
From Assumptions to Verified Geometry: How Laser Scanning Reduces Construction Risk
12.02.2026
Construction projects rarely fail because of design intent. They fail because of deviations between design and site conditions. Outdated drawings, undocumented modifications, uneven slabs, shifted ...
Laser Scanning for Existing Buildings: Challenges and Solutions
11.02.2026
Laser scanning for existing buildings is a core method for capturing real-world geometry when documentation is missing or unreliable. On renovation and operational sites, assumptions ...

What Is GPR Scanning?
10.02.2026
GPR scanning, or ground penetrating radar scanning, is a non-destructive method used to detect objects, structures, and changes in materials beneath the surface. It is ...

Accurate As-Built Data in Construction: Why It Matters
06.02.2026
Accurate as-built data plays a critical role in modern construction projects, influencing everything from project handover to long-term facility management. Accuracy determines whether project teams ...

What Is BIM Management in Construction Projects
05.02.2026
As construction projects become more complex, traditional document-based coordination is no longer sufficient. Multiple disciplines, large volumes of information, and tight schedules require a structured ...

BIM vs CAD: Key Differences for Construction Projects
02.02.2026
Digital design tools have been part of architecture and construction for decades, yet confusion around BIM vs CAD remains common. Many professionals still use these ...

Structural Design of Buildings Under Real Project Constraints
28.01.2026
In real projects, the structural design process breaks down when layout decisions are made before architectural grids, shafts, and major openings are stable. Most structural ...

How As-Built Drawings Are Created: Step-by-Step Process
28.01.2026
Accurate as-built documentation plays a critical role in architecture, engineering, and construction (AEC) projects. As-built drawings represent the actual conditions of a facility after construction, ...
LiDAR vs Laser Scanning: What’s the Real Difference?
27.01.2026
The terms LiDAR, laser scanning, and laser scanners are often used interchangeably — even within the construction and engineering industry. This confusion leads to poor technology ...

BIM Level of Detail Explained: When More Detail Stops Adding Value
26.01.2026
In modern construction projects, BIM Level of Detail (LOD) is often treated as a direct indicator of model quality. Many project teams assume that higher ...

Shop Drawings vs As-Built Drawings — Meaning, Differences, Examples & Complete Guide
09.12.2025
The construction industry generates many different drawing types: design drawings, construction drawings, shop drawings, redlines, BIM models, and as-built drawings. Among them, shop drawings and ...

Interior Design as a Reflection of Personality and New Opportunities in the Profession
31.10.2025
Today, interior design is no longer just about creating beautiful visuals. It has become an essential element of personal identity. The COVID-19 pandemic highlighted how ...

Highlights from Intergeo 2026 in Frankfurt
14.10.2025
Our team attended Intergeo 2026, the world’s leading trade fair for geodesy, geoinformation, and land management, held this year in Frankfurt. The event once again ...

Using Drones and Laser Scanning for As‑Built Surveys
30.09.2025
In the age of digital transformation, traditional methods of building measurement and documentation are being replaced by more efficient, accurate, and scalable technologies. Manual measurements ...

Laser Scanning for Roof Inspections: What You Need to Know
29.09.2025
Roof inspections have always been one of the most challenging aspects of building maintenance and construction. Whether it’s a commercial facility, an industrial plant, ...

Digital Twin in Construction – The Future of Building Industry
03.09.2025
In recent years, digital twin in construction has become one of the most transformative technologies in the building industry. But what is a digital twin, ...

CAD Outsourcing – Flexibility and Efficiency in Modern Design
27.08.2025
Digitization and the growing pace of project delivery make CAD outsourcing increasingly popular in the construction, architectural, industrial, and MEP sectors. Instead of expanding in-house ...

Precision Measurement for Facade Glazing Replacement
22.08.2025
Glass facades have become one of the defining architectural features of the 20th and 21st centuries. Their transparency, lightness, and aesthetic appeal made them the ...

Heritage Documentation Services in UAE: As-Built, BIM & Laser Scanning
15.08.2025
Preserving the architectural integrity and historical value of heritage buildings requires more than traditional surveying. Whether you’re restoring a cultural landmark in Sharjah, digitizing ...

Creating Accurate As-Built Drawings for Residential Renovations
14.08.2025
Modern home renovations require a solid foundation in the form of precise documentation of existing conditions. Without it, design errors, delays, and unnecessary costs are ...

Top 5 Benefits of 3D Laser Scanning for Interior Design
14.08.2025
Interior design is the art of combining aesthetics with functionality, but also a process that requires precision, thorough coordination, and the ability to anticipate potential ...

Benefits of As-Built Documentation for Realtors and Buyers
08.08.2025
A New Standard in Property RepresentationIn today’s competitive real estate market, digital tools are redefining how properties are marketed, evaluated, and sold. One of ...

The Future of Buying & Selling Surveying Equipment is Here
05.08.2025
For professionals in land surveying, construction, and geospatial industries, finding quality surveying equipment at a fair price can be a challenge. Whether you’re upgrading ...

3D Laser Imaging – An Interactive Walk Through Reality
05.08.2025
How integrating as-built documentation using advanced 3D scanning and laser scanning technology can revolutionize your real estate marketing strategy. Learn the benefits for agents and ...

Digital Twins & Marketing: The Key to Speed, Precision, and Profit
30.07.2025
How integrating as-built documentation using advanced 3D scanning and laser scanning technology can revolutionize your real estate marketing strategy. Learn the benefits for agents and ...

Can LiDAR See Through Ground or Walls? A Reliable Analysis of the Capabilities and Limitations of LiDAR Technology
29.07.2025
How integrating as-built documentation using advanced 3D scanning and laser scanning technology can revolutionize your real estate marketing strategy. Learn the benefits for agents and ...

High-Accuracy 3D Laser Scanning of Houses for Property Evaluation
23.07.2025
How integrating as-built documentation using advanced 3D scanning and laser scanning technology can revolutionize your real estate marketing strategy. Learn the benefits for agents and ...

BIM in Facilities Management – The Future of Intelligent Building Operation
23.07.2025
How integrating as-built documentation using advanced 3D scanning and laser scanning technology can revolutionize your real estate marketing strategy. Learn the benefits for agents and ...

Industrial Plant Modeling Using Scan-to-BIM Technology
22.07.2025
How integrating as-built documentation using advanced 3D scanning and laser scanning technology can revolutionize your real estate marketing strategy. Learn the benefits for agents and ...

Why BIM Modeling Reduces Errors in Construction Management
21.07.2025
How integrating as-built documentation using advanced 3D scanning and laser scanning technology can revolutionize your real estate marketing strategy. Learn the benefits for agents and ...

What is 3D Coordinate Measurement? A Key Tool for Architects and Interior Designers
19.07.2025
How integrating as-built documentation using advanced 3D scanning and laser scanning technology can revolutionize your real estate marketing strategy. Learn the benefits for agents and ...

Leica 3D Scanners – Precision and Reliability in Spatial Measurements
14.07.2025
How integrating as-built documentation using advanced 3D scanning and laser scanning technology can revolutionize your real estate marketing strategy. Learn the benefits for agents and ...

Outdoor Laser Scanning: Precision Mapping for Modern Land and Infrastructure Projects
10.07.2025
How integrating as-built documentation using advanced 3D scanning and laser scanning technology can revolutionize your real estate marketing strategy. Learn the benefits for agents and ...

Laser Scanning Land Surveying: A New Standard in Precision and Efficiency
07.07.2025
How integrating as-built documentation using advanced 3D scanning and laser scanning technology can revolutionize your real estate marketing strategy. Learn the benefits for agents and ...

Clash Detection in Revit: Enhancing Accuracy in 3D Laser Scanning and BIM Modeling
07.07.2025
How integrating as-built documentation using advanced 3D scanning and laser scanning technology can revolutionize your real estate marketing strategy. Learn the benefits for agents and ...

What Are As-Built Drawings? An Informative Guide
04.07.2025
How integrating as-built documentation using advanced 3D scanning and laser scanning technology can revolutionize your real estate marketing strategy. Learn the benefits for agents and ...

Phase-Based Laser Scanning: A High-Speed Solution for Precision 3D Data Capture in Architecture and MEP
03.07.2025
In the modern construction and building renovation industry, 3D laser scanning has become a critical tool for capturing precise measurements and creating digital models. Among ...

Why Are Professional 3D Scanners So Expensive? A Practical Investment Analysis
03.07.2025
3D scanning has become an essential tool in many industries — from civil engineering and construction to archaeology and cultural heritage preservation. However, high-end 3D scanners ...

Archicad + Scan to BIM: A Fast Track from Point Cloud to Accurate As-Built Documentation
19.05.2025
Tired of spending time on manual measurements and redrawing building geometry from outdated 2D plans? Archicad integrated with the Scan to BIM workflow lets you ...
What Is BIM in Architecture?
13.05.2025
A Smart Tool for Design, Coordination, and Project Efficiency In today’s construction industry, Building Information Modeling (BIM) is more than just a trend – it’...

Revolutionizing Bridge Design with BIM: Precision, Safety, and Smart Collaboration
05.05.2025
In the ever-evolving world of civil infrastructure, Building Information Modeling (BIM) is no longer just a buzzword—it’s a game-changer. When it comes to ...

Scan to BIM Outsourcing — A Fast, Accurate Way to Turn Reality Into Actionable BIM Data
05.05.2025
ScanM2 offers a seamless scan-to-BIM outsourcing workflow. These end-to-end BIM outsourcing and modeling services are carried out entirely in-house by our U.S. team and ...

Reverse Engineering in the Automotive Industry: From a Classic Corvette to Electric Buses
25.04.2025
Reverse engineering is gaining increasing relevance in the automotive sector – from reconstructing unavailable parts to developing modern aerodynamic components and electrifying existing vehicles. Thanks to 3...

3D Scanning for Reverse Engineering and Technical Documentation
25.04.2025
Unlock Engineering Precision with Reverse Engineering Reverse engineering with 3D scanning is essential when original technical documentation is missing, incomplete, or outdated. At SCANM2, we ...

When Is Reverse Engineering Essential Applications and Benefits Across Industries
25.04.2025
Reverse engineering is the process of extracting technical and functional data from an existing physical object – without having access to the original design documentation. Using ...

Examples of 3D Scanning Applications in Industry – The Key to Industry 4.0 and Production Digitalization
11.04.2025
Discover how 3D scanning transforms modern industry. From prototyping to digital twins, learn five essential applications that are reshaping production, quality control, and innovation in ...
