Inwentaryzacja 3D sieci 17 aptek w całej Polsce (2400 m²)
Modernizacja rozproszonej sieci handlowo-medycznej wymaga czegoś więcej niż pojedynczego pomiaru. Wymaga systemu.
W tym projekcie odpowiadaliśmy za kompleksową, seryjną inwentaryzację 3D dla 17 czynnych aptek zlokalizowanych w różnych miastach Polski. Łączna powierzchnia objęta opracowaniem wynosiła około 2400 m². Celem było stworzenie jednolitej, precyzyjnej bazy „as-built”, która stanie się fundamentem dla przyszłej modernizacji całej sieci.
Projekt nie dotyczył jednego obiektu — dotyczył standardu dla całej organizacji.
Skala i organizacja projektu
Realizacja obejmowała:
- 17 lokalizacji
- średnio 140 m² na obiekt
- pomiary w funkcjonujących placówkach
- ujednoliconą strukturę dokumentacji
Największym wyzwaniem była logistyka i powtarzalność jakości. Każda apteka różniła się układem, stanem technicznym oraz stopniem wcześniejszych modyfikacji, jednak dokumentacja końcowa musiała spełniać jeden, spójny standard.
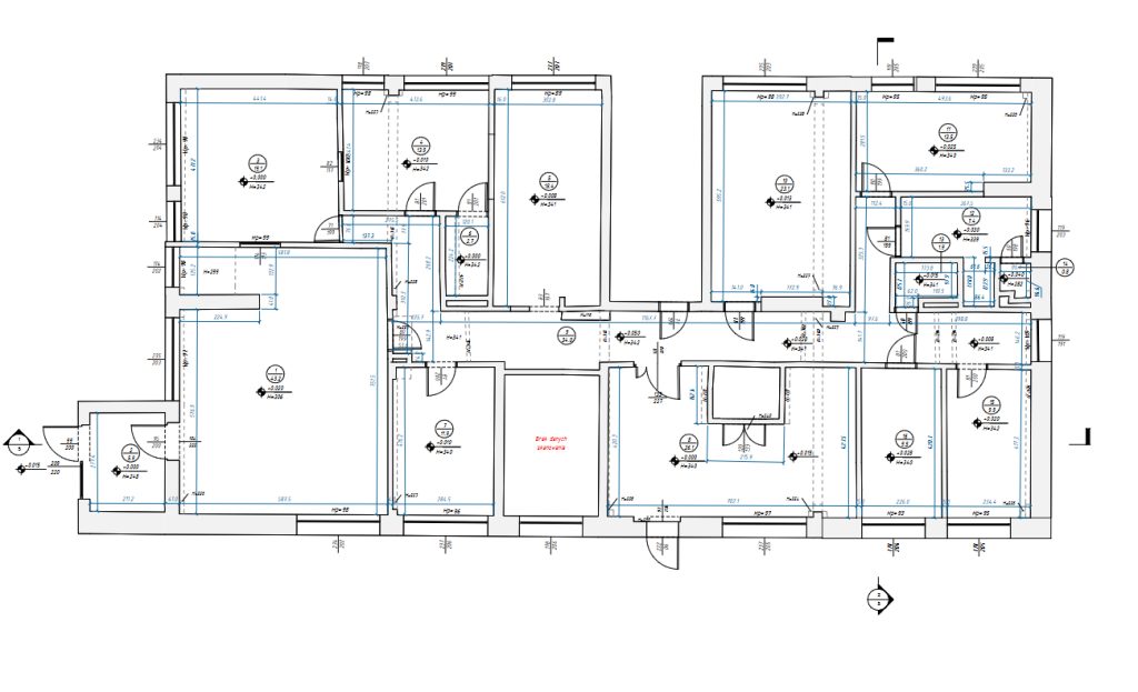
Co obejmowała inwentaryzacja
Zakres prac nie ograniczał się do samej geometrii ścian.
Skaning obejmował:
- pełną geometrię wnętrz,
- meble stałe i zabudowy technologiczne,
- lady sprzedażowe i zaplecze magazynowe,
- przebieg instalacji,
- elementy identyfikacji wizualnej i oznakowania,
- newralgiczne punkty branżowe.
Dla inwestora kluczowe było dokładne odwzorowanie wyposażenia — ponieważ projekt modernizacji miał obejmować reorganizację przestrzeni sprzedażowej bez całkowitej przebudowy.
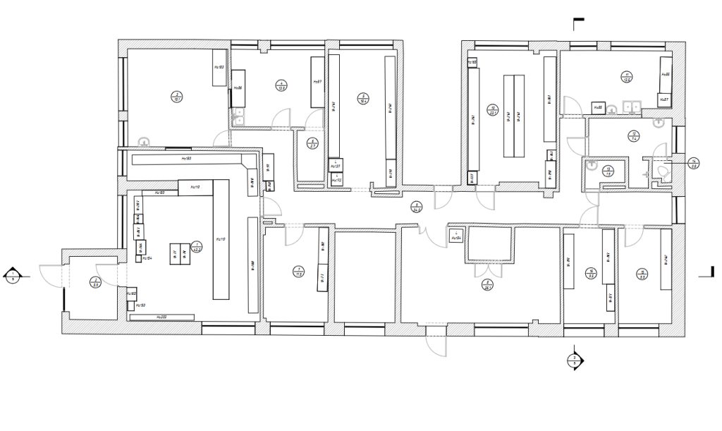
Dokumentacja techniczna
Dokumentacja z realizacji
Technologia i opracowanie danych
Zastosowano naziemny skaning laserowy 3D (LiDAR), który pozwolił na szybkie i bezinwazyjne zebranie pełnych danych przestrzennych.
Każdy obiekt został opracowany w identycznym schemacie:
- chmura punktów w formatach .rcp i .rcs,
- rzut główny (DWG + PDF),
- dwa przekroje charakterystyczne,
- plan oznakowania,
- dokumentacja fotograficzna,
- wirtualny spacer 3D (.lgs).
Dzięki temu architekci i projektanci otrzymali narzędzie pracy, a nie tylko rysunek.
Wyzwania realizacyjne
Praca w czynnych obiektach
Pomiary musiały być przeprowadzane bez zakłócania sprzedaży i pracy personelu.
Precyzja instalacyjna
W aptekach instalacje są kluczowe – zarówno elektryczne, jak i branżowe. Niedokładność mogłaby oznaczać kolizje przy montażu nowych systemów.
Spójność między lokalizacjami
Każdy obiekt miał swoją historię przebudów. Ujednolicenie dokumentacji wymagało nie tylko technologii, ale też doświadczenia zespołu.
Efekt biznesowy dla inwestora
Projekt przyniósł inwestorowi realne korzyści operacyjne:
✔ Jednolity standard dokumentacji dla całej sieci
✔ Możliwość centralnego projektowania bez dodatkowych wizji lokalnych
✔ Redukcję kosztów logistycznych
✔ Eliminację ryzyka kolizji przy modernizacji
✔ Skrócenie czasu przygotowania nowych projektów
Zamiast 17 różnych opracowań — powstał jeden system dokumentacyjny.












