Dokumentacja powykonawcza – profesjonalne rysunki i usługi w Polsce
Dokumentacja powykonawcza to kluczowy element każdego projektu budowlanego. Stanowi końcowy zestaw rysunków i opracowań, które odzwierciedlają wszystkie zmiany wprowadzone w trakcie robót. Dzięki temu inwestor, wykonawca oraz projektanci dysponują wiarygodnym zapisem rzeczywistego stanu obiektu. W ScanM2 oferujemy kompleksowe usługi dokumentacji powykonawczej na terenie całej Polski – od małych modernizacji po duże inwestycje przemysłowe.
Co to jest dokumentacja powykonawcza?
Rysunki powykonawcze to finalne plany, które różnią się od dokumentacji projektowej tym, że uwzględniają wszystkie korekty i zmiany wprowadzone podczas budowy. Mogą obejmować:
- rysunki budowlane powykonawcze – aktualny układ pomieszczeń, fundamentów i konstrukcji,
- rysunki powykonawcze elektryczne i plan elektryczny powykonawczy,
- opracowania instalacji sanitarnych, HVAC, wod.-kan. oraz systemów przeciwpożarowych,
- dokumentacja geodezyjna powykonawcza – wymagana do odbiorów i uzyskania pozwolenia na użytkowanie.
Tego typu opracowania są podstawą przy rozbudowach, remontach i zarządzaniu obiektem.
Dlaczego dokumentacja powykonawcza jest ważna?
Dobrze przygotowana dokumentacja powykonawcza w budownictwie zapewnia:
- zgodność z przepisami i standardami rysunków powykonawczych,
- podstawę do prowadzenia dziennika odbiorów i archiwizacji dokumentacji,
- bezpieczeństwo przy eksploatacji instalacji elektrycznych i konstrukcji,
- ograniczenie ryzyka kosztownych przeróbek,
- jasny punkt odniesienia przy przyszłych projektach.
Zakres naszych usług dokumentacji powykonawczej
Oferujemy pełne spektrum opracowań dopasowanych do indywidualnych potrzeb:
- Rysunki powykonawcze – plany kondygnacji, układ pomieszczeń, plany dachów.
- Rysunki elewacji i przekrojów powykonawczych – elewacje zewnętrzne, przekroje poprzeczne i podłużne.
- Rysunki instalacyjne (MEP) – rysunki powykonawcze instalacji elektrycznej, schematy okablowania, HVAC, instalacje wod.-kan., systemy ppoż.
- Rysunki konstrukcyjne powykonawcze – fundamenty, słupy, belki, stropy.
- Modele powykonawcze 2D i 3D – rysunki CAD, modele BIM w Revit i Archicad, inteligentne modele dla modernizacji i zarządzania.
- Dokumentacja powykonawcza do odbiorów i pozwoleń – opracowania wymagane przy protokołach odbiorów i kontrolach.
Nasza Metoda Pracy: Od Początku do Końca
Nasze usługi dokumentacji powykonawczej zostały zaprojektowane z myślą o zapewnieniu płynnego i efektywnego doświadczenia, dopasowanego do unikalnych potrzeb każdego projektu. Oto krok po kroku, jak realizujemy nasze usługi:
- Konsultacja Wstępna. Zaczynamy od omówienia specyficznych wymagań Twojego projektu. Niezależnie od tego, czy jest to mała renowacja, czy duża budowa, nasz zespół ocenia zakres prac, aby wybrać najlepsze podejście do stworzenia dokładnej dokumentacji powykonawczej.
- Skanowanie Laserowe 3D na Miejscu. Nasi eksperci wykorzystują zaawansowaną technologię laserowego skanowania 3D, aby uchwycić precyzyjne pomiary Twojego budynku lub terenu. Ta nieinwazyjna metoda zapewnia dokładne odwzorowanie każdego szczegółu bez zakłócania bieżących prac. Inwentaryzacja powykonawcza wykonana tą metodą pozwala na stworzenie rzetelnej i pełnej dokumentacji, która będzie odzwierciedlać rzeczywisty stan obiektu.
- Przetwarzanie Danych i Generowanie Chmury Punktów. Zebrane dane skanowania są przetwarzane i przekształcane w szczegółową chmurę punktów, stanowiącą podstawę do stworzenia dokumentacji powykonawczej. Ta chmura punktów zapewnia precyzyjny obraz przestrzeni fizycznej, uwzględniając elementy konstrukcyjne, instalacje oraz inne cechy obiektu. Inwentaryzacja powykonawcza jest kluczowym etapem, na którym opiera się dalsza dokumentacja projektu.
- Tworzenie Planów 2D i Modeli 3D. Korzystając z wiodącego oprogramowania BIM, takiego jak Revit, nasz zespół przekształca chmurę punktów w szczegółowe plany 2D oraz modele 3D. Modele te są wszechstronne i mogą być wykorzystane przy renowacjach, modernizacjach czy zarządzaniu obiektami.
- Kontrola Jakości i Przegląd. Przed dostarczeniem finalnej dokumentacji powykonawczej, przeprowadzamy szczegółową kontrolę jakości, aby zapewnić jej dokładność i kompletność. Współpracujemy z Tobą, aby przejrzeć dokumenty, upewniając się, że spełniają Twoje oczekiwania i potrzeby projektowe.
- Ostateczna Dostawa. Gotową dokumentację powykonawczą dostarczamy w preferowanym formacie. Oferujemy różnorodne formaty wyjściowe, takie jak .dwg, .rvt (Revit), .pdf i inne, aby zapewnić kompatybilność z Twoimi istniejącymi systemami.
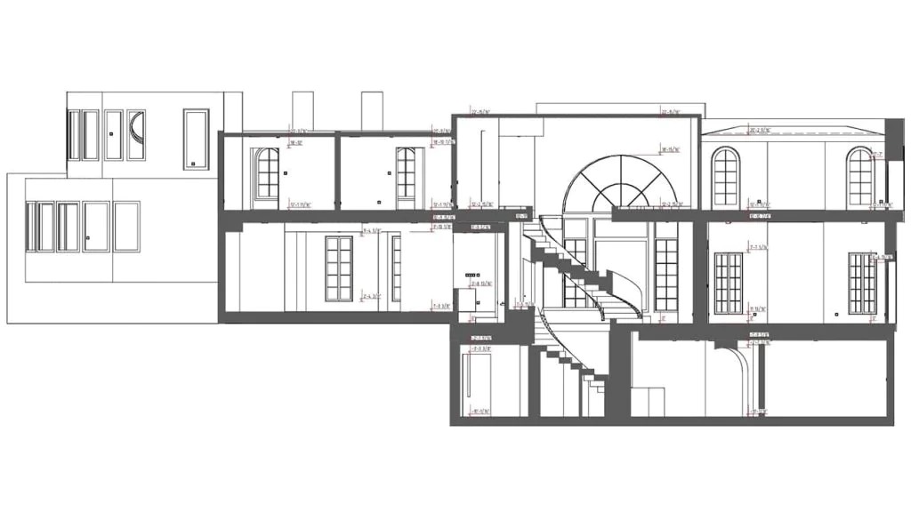
Przykłady dokumentacji powykonawczej ScanM2
galeria przykładów
Co Otrzymujesz?
Wybierając ScanM2.com do realizacji usług dokumentacji powykonawczej, otrzymujesz:
- Precyzyjną Dokumentację Powykonawczą: Dokładne odwzorowanie aktualnego stanu Twojego budynku lub projektu. Dzięki naszej inwentaryzacji powykonawczej, masz pewność, że wszystkie elementy projektu są uwzględnione i dokładnie przedstawione.
- Dokumentację Dopasowaną do Twoich Potrzeb: Spersonalizowaną dokumentację powykonawczą, która spełnia Twoje specyficzne wymagania. Inwentaryzacja powykonawcza dostosowana do Twojego projektu pozwala na bezproblemowe wdrożenie dalszych działań.
- Wszechstronne Formatowanie: Dostarczanie dokumentacji w różnych formatach, w tym rysunki CAD 2D oraz modele BIM 3D w Revit. Dzięki temu możesz łatwo integrować nasze dokumenty z już istniejącymi systemami zarządzania projektami.
- Konkurencyjne Ceny: Oferujemy jedne z najlepszych stawek na rynku, jednocześnie utrzymując wysokie standardy jakości.
- Wyjątkową Obsługę: Zespół zaangażowany w dostarczanie doskonałej obsługi klienta i wsparcia technicznego na każdym etapie realizacji projektu.
Ile kosztuje dokumentacja powykonawcza?
Dokumentacja powykonawcza cena zależy od powierzchni budynku, zakresu rysunków i stopnia skomplikowania instalacji.
| Typ projektu | Zakres | Cena orientacyjna | Uwagi |
|---|---|---|---|
| Małe projekty mieszkaniowe | do 100 m² | od 1200 zł | podstawowe rysunki powykonawcze |
| Obiekty komercyjne | 500–1000 m² | od 4500 zł | dokumentacja wielobranżowa |
| Duże inwestycje przemysłowe | powyżej 2000 m² | indywidualna wycena | pełna inwentaryzacja powykonawcza |
Podane kwoty są orientacyjne – zapytaj o wycenę dopasowaną do swojego projektu.
Jak zamówić rysunki powykonawcze?
- Skontaktuj się i podziel szczegółami projektu.
- Wykonujemy skanowanie laserowe 3D lub pracujemy na istniejącej dokumentacji.
- Tworzymy rysunki CAD powykonawcze i/lub modele BIM.
- Przekazujemy pełną dokumentację w formatach .DWG, .RVT, .PDF, IFC.
Najczęściej zadawane pytania (FAQ)
Ile kosztuje dokumentacja powykonawcza?
Ceny zaczynają się od 4000 zł, zależą od wielkości i złożoności obiektu.
Co powinna zawierać dokumentacja powykonawcza?
Rysunki architektoniczne, konstrukcyjne, instalacyjne, protokoły odbiorów oraz dokumentację geodezyjną.
Czy potrzebna jest dokumentacja powykonawcza instalacji elektrycznej?
Tak, rysunki powykonawcze elektryczne są obowiązkowe przy odbiorach i zapewniają bezpieczeństwo użytkowania.
Gdzie mogę zamówić rysunki powykonawcze w pobliżu?
Przykłady dokumentacji powykonawczej ScanM2ScanM2 realizuje projekty w całej Polsce, zapewniając krótki czas realizacji i wysoką jakoś
Dlaczego ScanM2?
Jako doświadczona firma dokumentacji powykonawczej działająca w całej Polsce:
- realizujemy usługi rysunków powykonawczych w pobliżu i zdalnie,
- oferujemy konkurencyjne ceny przy zachowaniu wysokich standardów,
- przygotowujemy rysunki zgodnie z obowiązującymi normami i standardami,
- dostarczamy zarówno dokumentację 2D, jak i zaawansowane modele BIM.
Pierwsza konsultacja jest zawsze bezpłatna. Wystarczy skontaktować się z nami, aby otrzymać indywidualną ofertę i wstępną wycenę dostosowaną do Twojego projektu.

































