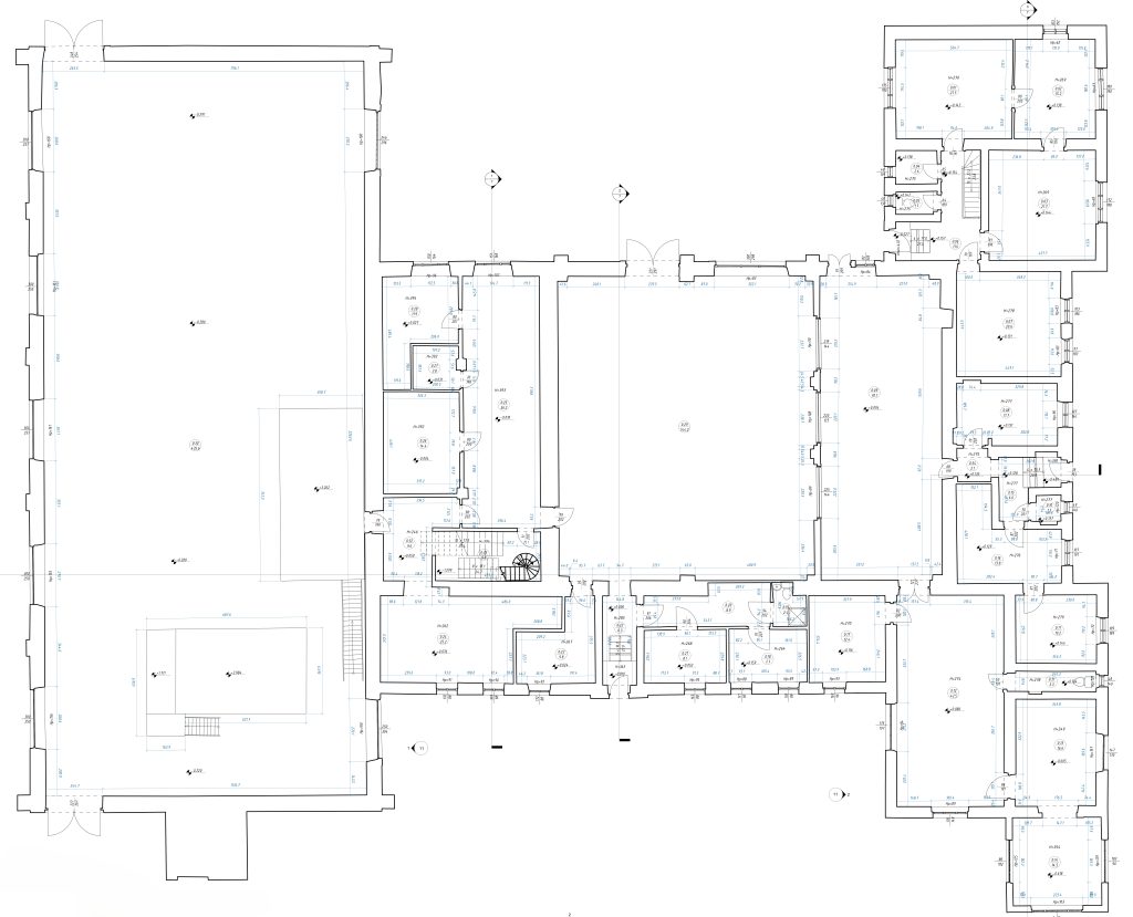
Precyzja w skali makro: Ekspresowa inwentaryzacja 3D zabytkowej kotłowni 2300 m² w 8 dni
Zrealizowaliśmy kompleksową inwentaryzację architektoniczną zabytkowej kotłowni w Krakowie o powierzchni około 2300 m². Standardowy czas opracowania dokumentacji tego typu wynosi ponad 3 tygodnie. Ze względu na sytuację awaryjną po stronie inwestora, projekt został wykonany w trybie przyspieszonym – pełny komplet danych dostarczyliśmy w 8 dni roboczych, przy zachowaniu rygorystycznych standardów dokładności geodezyjnej.
Charakterystyka projektu
Typ projektu: Inwentaryzacja 3D pod projekt modernizacyjny
Lokalizacja: Kraków
Powierzchnia: ~2300 m²
Zakres: Skaning laserowy 3D + dokumentacja 2D
Układ odniesienia: PL-2000, strefa 7
Cel: Dostarczenie precyzyjnej bazy projektowej w trybie przyspieszonym
Zabytkowa kotłownia – inwentaryzacja 3D 2300 m² | 8 dni | PL-2000
Kluczowe wyzwania
Czas realizacji
Redukcja harmonogramu z 21+ dni do 8 dni roboczych bez kompromisów jakościowych.
Georeferencja
Precyzyjne wpasowanie chmury punktów w państwowy układ współrzędnych PL-2000 (strefa 7), umożliwiające natychmiastową integrację z mapami geodezyjnymi i dokumentacją projektową.
Specyfika obiektu
Zabytkowy charakter budynku oraz obecność czynnej infrastruktury technicznej wymagały starannego planowania stanowisk skanowania i kontroli dokładności.
Dane techniczne
Metoda: naziemny skaning laserowy 3D z rejestracją koloru RGB
Układ odniesienia: PL-2000, strefa 7
Gęstość chmury: > 1000 pkt/m² (opracowania w skali 1:50)
Dokładność geometryczna: ±5 mm na dystansie 10 m
Formaty danych: LAS, E57, DWG, PDF
Metodologia realizacji (Tryb Sprint)
Dzień 1–2
Skaning laserowy 3D wnętrz i elewacji obiektu.
Dzień 2–3
Rejestracja i łączenie skanów, kontrola błędów, pełna georeferencja w układzie PL-2000.
Dzień 4–7
Opracowanie dokumentacji 2D: rzuty, przekroje, elewacje w skali 1:50.
Dzień 8
Kontrola jakości (QA), weryfikacja dokładności, przygotowanie raportu technicznego i przekazanie danych.
Rezultaty dla inwestora
Kompletna chmura punktów RGB gotowa do dalszego modelowania BIM
Precyzyjna dokumentacja 2D bez potrzeby dodatkowych pomiarów terenowych
Oszczędność 13 dni roboczych względem standardowego harmonogramu
Pełna kompatybilność z dokumentacją geodezyjną dzięki układowi PL-2000
Projekt stanowi przykład efektywnego połączenia technologii skaningu laserowego 3D, precyzyjnej georeferencji oraz zoptymalizowanego harmonogramu realizacji.












