Skanowanie zabytkowej kamienicy w centrum Płocka – 710 m²
Zrealizowaliśmy kompleksową inwentaryzację architektoniczną zabytkowej kamienicy zlokalizowanej w ścisłym centrum Płocka. Obiekt o łącznej powierzchni około 710 m² charakteryzuje się historyczną strukturą, nieregularną geometrią oraz licznymi detalami architektonicznymi wymagającymi wysokiej precyzji pomiarowej.
Celem projektu było wykonanie skanowania 3D oraz przygotowanie kompletnej dokumentacji 2D jako bazy do dalszych prac projektowych i modernizacyjnych.
Charakterystyka projektu
Typ projektu: Inwentaryzacja 3D zabytkowej kamienicy
Lokalizacja: Płock, centrum miasta
Powierzchnia: ok. 710 m²
Zakres: Skanowanie laserowe 3D + dokumentacja 2D
Cel: Opracowanie precyzyjnej bazy projektowej do dalszego projektowania
Kluczowy parametr: Wysokiej dokładności odwzorowanie stanu istniejącego
Dokumentacja i wizualizacje projektu
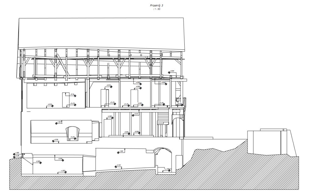
Skanowanie 3D zabytkowego budynku Inwentaryzacja 3D | Dokumentacja 2D/3D
Kluczowe wyzwania
Czas realizacji
Sprawna organizacja prac pomiarowych w centrum miasta przy zachowaniu wysokiej dokładności danych.
Dokładność odwzorowania
Zabytkowa kamienica posiada nieregularne ściany, odchylenia konstrukcyjne, detale architektoniczne oraz historyczną stolarkę, które wymagały bardzo dokładnego odwzorowania geometrii.
Specyfika obiektu
Praca w zwartej zabudowie miejskiej oraz ograniczona przestrzeń logistyczna.
Dane techniczne i dokładność
- Metoda: naziemne skanowanie laserowe 3D
- Gęstość danych: wysoka rozdzielczość chmury punktów jako baza projektowa
- Dokładność geometryczna: ±4 mm
- Zakres opracowania: rzuty, przekroje, elewacje oraz model 3D (opcjonalnie)
Metodologia realizacji
- wykonanie naziemnego skanowania laserowego całego obiektu
- rejestracja i wyrównanie chmury punktów
- wstępna obróbka danych oraz kontrola spójności geometrii
- opracowanie dokumentacji 2D na podstawie chmury punktów
- budowa modelu 3D (w przypadku wyboru wariantu BIM)
- wewnętrzna kontrola jakości (QA)
- eksport danych do uzgodnionych formatów: DWG, PDF, RVT, PLN lub inne wymagane przez inwestora
Wyniki projektu
- Kompletna chmura punktów
Precyzyjne odwzorowanie stanu rzeczywistego obiektu, gotowe do pracy projektowej w środowiskach 2D i 3D. - Dokumentacja 2D
Dokładne rzuty kondygnacji, przekroje i elewacje w formatach DWG oraz PDF. - Model 3D (opcjonalnie)
Model wykonany na bazie danych ze skanowania, kompatybilny z ArchiCAD i Revit, z możliwością eksportu do innych systemów. - Raport techniczny
Zawierający opis metodologii, parametry dokładnościowe oraz informacje do weryfikacji danych pomiarowych. - Oszczędność czasu
Dzięki optymalizacji procesu realizacji skróciliśmy czas opracowania dokumentacji o kilka dni roboczych, zachowując pełną dokładność pomiarową.













