Skanowanie zabytkowej kamienicy w centrum Płocka – 710 m²
Realizacja dotyczyła kompleksowej inwentaryzacji architektonicznej zabytkowej kamienicy zlokalizowanej w ścisłym centrum Płocka. Obiekt o powierzchni ok. 710 m² stanowi przykład historycznej zabudowy miejskiej, w której przez lata prowadzono różne prace adaptacyjne. Brak aktualnej dokumentacji oraz nieregularna geometria wymagały zastosowania precyzyjnej technologii pomiarowej.
Celem projektu było wykonanie pełnego skanowania 3D oraz przygotowanie kompletnej dokumentacji 2D, stanowiącej solidną bazę do dalszych prac projektowych, modernizacyjnych oraz ewentualnych uzgodnień konserwatorskich.
Charakterystyka obiektu
Kamienica posiadała klasyczną, wielokondygnacyjną strukturę z detalami typowymi dla zabudowy historycznej:
- nieregularne ściany i odchylenia pionów,
- zróżnicowaną grubość przegród,
- historyczną stolarkę drzwiową i okienną,
- detale elewacyjne wymagające precyzyjnego odwzorowania.
W przypadku tego typu obiektów tradycyjne pomiary ręczne niosą ryzyko uproszczeń geometrycznych, które mogą wpływać na dalsze etapy projektowe. Skanowanie 3D pozwoliło odwzorować rzeczywisty stan budynku bez interpretacji i przybliżeń.
Realizacja projektu Skanowanie zabytkowej kamienicy
Zakres prac
Projekt obejmował:
- naziemne skanowanie laserowe 3D całego obiektu (wnętrza i elewacje),
- wykonanie kompletnej chmury punktów jako bazy projektowej,
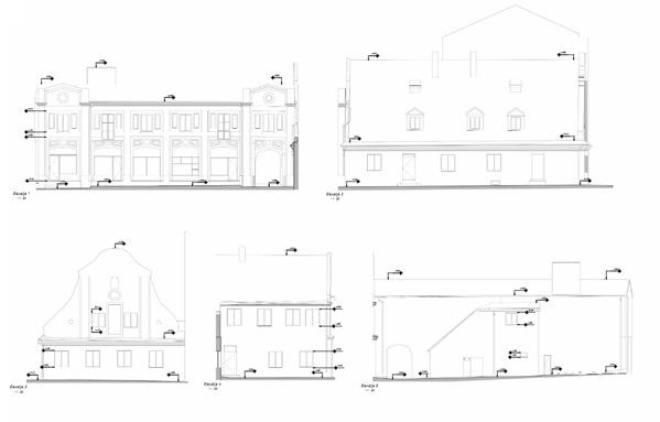
- opracowanie dokumentacji 2D: rzuty kondygnacji, przekroje, elewacje,
- możliwość budowy modelu 3D na bazie danych ze skanowania.
Dokładność pomiarowa została utrzymana na poziomie ±4 mm, co zapewniło wysoką wiarygodność danych przy dalszym opracowaniu projektowym.
Wyzwania realizacyjne
Precyzja w obiekcie zabytkowym
Zabytkowe kamienice cechują się naturalnymi deformacjami konstrukcyjnymi wynikającymi z wieku budynku. Konieczne było dokładne uchwycenie:
- odchyleń ścian od pionu,
- nierówności stropów,
- lokalnych deformacji konstrukcyjnych,
- niestandardowych detali architektonicznych.
Lokalizacja w ścisłym centrum
Prace prowadzone były w zwartej zabudowie miejskiej, co wymagało sprawnej organizacji pomiarów oraz dostosowania harmonogramu do warunków lokalnych.
Terminowość i koordynacja
Realizacja obejmowała nie tylko pomiar, ale także szybkie opracowanie dokumentacji, aby umożliwić rozpoczęcie kolejnych etapów projektowych bez opóźnień.
Technologia i metodologia
Proces realizacji obejmował:
- wykonanie naziemnego skanowania laserowego 3D,
- wstępną obróbkę danych,
- łączenie i wyrównanie chmury punktów,
- analizę jakości i kontrolę dokładności,
- opracowanie dokumentacji 2D na podstawie chmury,
- eksport plików w uzgodnionych formatach (.dwg, .pdf, .rvt, .pln).
Chmura punktów stanowiła pełne, cyfrowe odwzorowanie stanu istniejącego, umożliwiające pracę projektową zarówno w środowisku CAD, jak i BIM.
Efekt końcowy i wartość dla Inwestora
Inwestor otrzymał:
✔ Kompletną chmurę punktów gotową do dalszej analizy
✔ Precyzyjną dokumentację 2D (rzuty, przekroje, elewacje)
✔ Możliwość budowy modelu 3D kompatybilnego z ArchiCAD i Revit
✔ Raport techniczny potwierdzający parametry dokładnościowe
Dzięki zastosowaniu skanowania 3D czas opracowania dokumentacji został skrócony o kilka dni roboczych, przy jednoczesnym zachowaniu pełnej zgodności geometrycznej z rzeczywistym stanem obiektu.
Projekt ten potwierdza, że w przypadku obiektów zabytkowych technologia skaningu laserowego stanowi nie tylko narzędzie pomiarowe, ale realne wsparcie dla architektów i projektantów pracujących z historyczną tkanką miejską.







