Inwentaryzacja budynku i inwentaryzacja budowlana 3D w Polsce
Profesjonalna inwentaryzacja budynku wykonywana w technologii skanowania laserowego 3D oraz klasycznych pomiarów budowlanych. Realizujemy inwentaryzację budowlaną budynków mieszkalnych, komercyjnych i przemysłowych na terenie całej Polski, dostarczając dokładną dokumentację do celów projektowych, modernizacyjnych i inwestycyjnych.
Nasza usługa obejmuje zarówno inwentaryzację architektoniczną budynku, jak i opracowanie cyfrowej dokumentacji 3D, która może zostać wykorzystana przy przebudowie, remoncie lub zmianie sposobu użytkowania obiektu.
Czym jest inwentaryzacja budynku?

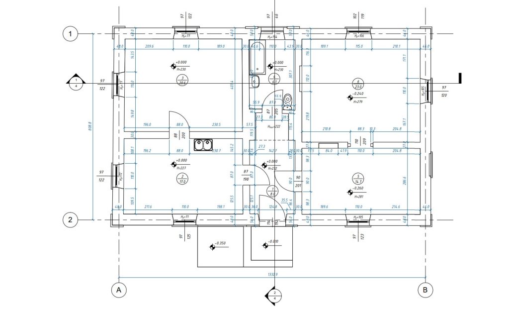
Inwentaryzacja budynku to szczegółowe opracowanie rzeczywistego stanu istniejącego obiektu. Polega na wykonaniu pomiarów konstrukcji, układu pomieszczeń, elementów instalacyjnych oraz zagospodarowania przestrzeni.
W praktyce oznacza to:
- pomiar wymiarów ścian, stropów i otworów,
- określenie wysokości pomieszczeń,
- dokumentację układu funkcjonalnego,
- analizę konstrukcji budynku,
- przygotowanie rzutów, przekrojów i elewacji.
Inwentaryzacja budowlana budynku jest podstawą do opracowania projektu przebudowy, adaptacji poddasza, rozbudowy domu czy modernizacji obiektu komercyjnego.
Inwentaryzacja budowlana a architektoniczna – różnice
W praktyce pojęcia te są często stosowane zamiennie, jednak ich zakres może się różnić.
Inwentaryzacja budowlana obejmuje pełne opracowanie techniczne obiektu – konstrukcję, instalacje, geometrię oraz elementy zagospodarowania.
Inwentaryzacja architektoniczna budynku koncentruje się głównie na układzie funkcjonalnym, wymiarach pomieszczeń oraz elementach wykończeniowych.
W ScanM2 łączymy oba podejścia, dostarczając kompleksową dokumentację architektoniczno-budowlaną w formie 2D oraz 3D.
Skanowanie laserowe jako wsparcie inwentaryzacji budynku
Tradycyjna inwentaryzacja budynku opiera się na ręcznych pomiarach. My wykorzystujemy skanowanie laserowe 3D, które pozwala na uzyskanie milionów punktów pomiarowych w krótkim czasie.
Zastosowanie technologii 3D umożliwia:
- pełne odwzorowanie geometrii obiektu,
- wykrycie odchyleń i deformacji,
- analizę pionowości i poziomów,
- archiwizację danych pomiarowych,
- tworzenie modelu 3D budynku.
Dzięki temu inwestor otrzymuje nie tylko rysunki techniczne, ale również cyfrową dokumentację, która może być wykorzystana w przyszłych projektach.
Jakie obiekty inwentaryzujemy?
Obiekty poddane inwentaryzacji budynku i dokumentacji 3D
Realizujemy inwentaryzację budynków różnego typu:
Inwentaryzacja obiektu budowlanego
Realizujemy również inwentaryzację obiektu budowlanego w przypadku hal przemysłowych, magazynów, obiektów technicznych oraz budynków o niestandardowej konstrukcji.
Inwentaryzacja budynku mieszkalnego
Domy jednorodzinne, zabudowa szeregowa, budynki wielorodzinne.
Inwentaryzacja domu jednorodzinnego
Dokumentacja do rozbudowy, nadbudowy lub adaptacji poddasza.
Inwentaryzacja kamienicy
Szczegółowe opracowanie historycznych obiektów miejskich.
Inwentaryzacja budynku gospodarczego
Obiekty magazynowe, warsztaty, zabudowa towarzysząca.
Inwentaryzacja lokalu
Pomiar mieszkań i lokali usługowych do celów projektowych.
Każda inwentaryzacja budynku dostosowana jest do indywidualnego celu inwestora.
Kto wykonuje inwentaryzację budynku?
Inwentaryzacja budowlana wykonywana jest przez zespół specjalistów – inżynierów, architektów oraz operatorów skanera 3D.
W zależności od zakresu prac może być również wymagana współpraca z geodetą (np. w przypadku opracowań terenowych).
W ScanM2 zapewniamy kompleksową obsługę – od pomiaru po opracowanie dokumentacji.
Koszt inwentaryzacji budowlanej – od czego zależy cena?
Koszt inwentaryzacji budynku zależy od:
- powierzchni obiektu,
- stopnia skomplikowania konstrukcji,
- liczby kondygnacji,
- zakresu opracowania (2D lub 3D),
- celu dokumentacji.
Orientacyjne czynniki wpływające na cenę
| Rodzaj obiektu | Zakres opracowania | Wpływ na koszt |
| Dom jednorodzinny | Rzuty 2D | Niższy |
| Budynek mieszkalny | Rzuty + przekroje | Średni |
| Obiekt komercyjny | Dokumentacja 2D + model 3D | Wyższy |
| Kamienica | Pełna dokumentacja 3D | Najwyższy |
Często pojawia się pytanie o inwentaryzację budowlaną cena za m2. W praktyce cena za m2 zależy od dostępności obiektu oraz zakresu dokumentacji. Każdą wycenę przygotowujemy indywidualnie po analizie projektu.
Czas realizacji inwentaryzacji budowlanej
Czas realizacji zależy od wielkości obiektu.
- Mieszkanie lub lokal – zazwyczaj 1 dzień pomiarowy.
- Dom jednorodzinny – 1–2 dni pomiarowe.
- Budynek wielorodzinny lub komercyjny – indywidualny harmonogram.
Opracowanie dokumentacji trwa zazwyczaj od kilku dni do 2–3 tygodni w zależności od zakresu.
Kiedy wymagana jest inwentaryzacja budynku?
Inwentaryzacja budynku jest wymagana lub zalecana w przypadku:
- planowanej przebudowy,
- rozbudowy domu,
- adaptacji poddasza,
- zmiany sposobu użytkowania,
- opracowania projektu budowlanego,
- sprzedaży nieruchomości wymagającej aktualnej dokumentacji.
Jaki jest rezultat inwentaryzacji budynku?



W wyniku realizacji usługi klient otrzymuje:
- rzuty kondygnacji,
- przekroje i elewacje,
- dokumentację architektoniczną,
- pliki DWG / PDF,
- model 3D budynku (opcjonalnie),
- chmurę punktów (na życzenie).
Dzięki temu inwentaryzacja budynku staje się solidną podstawą do dalszych prac projektowych.
Dlaczego ScanM2?
- Nowoczesna technologia skanowania laserowego 3D
- Wysoka dokładność pomiarów
- Kompleksowa dokumentacja 2D i 3D
- Doświadczenie w pracy z budynkami miejskimi i mieszkalnymi
- Obsługa inwestycji w całej Polsce
Jeśli potrzebujesz profesjonalnej inwentaryzacji budynku lub wyceny inwentaryzacji budowlanej – skontaktuj się z nami. Przygotujemy indywidualną ofertę dostosowaną do zakresu Twojej inwestycji.
FAQ – Inwentaryzacja budynku
Czy inwentaryzacja budynku obejmuje model 3D?
Tak, na życzenie klienta przygotowujemy model 3D budynku oraz cyfrową dokumentację do dalszych prac projektowych.
Na czym polega inwentaryzacja budowlana?
Inwentaryzacja budynku to szczegółowe opracowanie rzeczywistego stanu istniejącego obiektu. Obejmuje pomiar geometrii, układu pomieszczeń oraz elementów konstrukcyjnych w celu przygotowania dokumentacji projektowej.
Kto wykonuje inwentaryzację budynku?
Inwentaryzację budynku wykonują inżynierowie budownictwa, architekci oraz specjaliści od pomiarów 3D. W zależności od zakresu może być wymagana współpraca z geodetą.
Czy cena inwentaryzacji budynku liczona jest za m2?
Cena inwentaryzacji budynku zależy od powierzchni obiektu, jego złożoności oraz zakresu opracowania (2D lub 3D). Wycena przygotowywana jest indywidualnie.
Czy cena inwentaryzacji budowlanej liczona jest za m2?
W wielu przypadkach koszt może być orientacyjnie przeliczany na m2, jednak ostateczna cena zależy od dostępności budynku oraz zakresu dokumentacji.
Od czego zależy czas realizacji inwentaryzacji budowlanej?
Czas realizacji zależy od wielkości obiektu. Dla domu jednorodzinnego pomiar trwa zazwyczaj 1–2 dni, a opracowanie dokumentacji kilka dni roboczych.
Czy wykonujecie inwentaryzację domu jednorodzinnego?
Tak, realizujemy inwentaryzację domu jednorodzinnego zarówno do celów projektowych, jak i modernizacyjnych.
Czy wykonujecie inwentaryzację kamienicy?
Tak, wykonujemy inwentaryzację kamienicy oraz obiektów historycznych, uwzględniając ich specyfikę konstrukcyjną.































