2D CAD Documentation Services from Point Cloud and Laser Scanning
2D CAD documentation services involve the creation of precise technical drawings used in construction, engineering, and industrial projects. These drawings include floor plans, elevations, sections, and detailed layouts that accurately represent building geometry and technical systems.
Unlike traditional manual drafting, modern CAD documentation is created using digital tools such as AutoCAD, ensuring higher accuracy, consistency, and scalability. 2D CAD drawings remain a critical part of project documentation, especially for construction execution, approvals, and facility management.
Contact Us Now for a Free Consultation!
In many cases, CAD documentation is developed based on existing data, including legacy drawings or field measurements. However, the most accurate approach today is generating drawings directly from laser scanning and point cloud data.
Our 2D CAD Drafting Services
We provide a full range of 2D CAD drafting services tailored to construction, engineering, and industrial applications:
- As-built CAD drawings
- Floor plans and layouts
- Elevations and cross-sections
- Shop drawings
- Technical documentation
- CAD conversion from PDF, sketches, and scans
Our team ensures that every drawing reflects real project conditions and meets industry standards for accuracy and clarity.
2D CAD Drawings from Point Cloud and Laser Scanning
One of the key advantages of working with ScanM2 is our ability to produce CAD drawings directly from scan data. Using advanced workflows, we convert point cloud data into precise 2D documentation.
This process, often referred to as scan-to-CAD, allows engineers to work with real-world geometry rather than outdated or incomplete drawings.
By combining point cloud modeling with CAD drafting, we ensure:
- accurate representation of existing structures
- elimination of measurement errors
- faster documentation for complex объектов
- reliable base for renovation and retrofit projects
CAD drawings from point cloud data are especially valuable for projects involving existing buildings, industrial facilities, and реконструкции.
Applications of 2D CAD Documentation
2D CAD documentation is widely used across different industries and project types:
- Architectural design and planning
- Construction documentation
- Industrial facility layouts
- Renovation and retrofit projects
- Facility management and maintenance
In all these cases, accurate technical drawings are essential for decision-making, coordination, and execution.
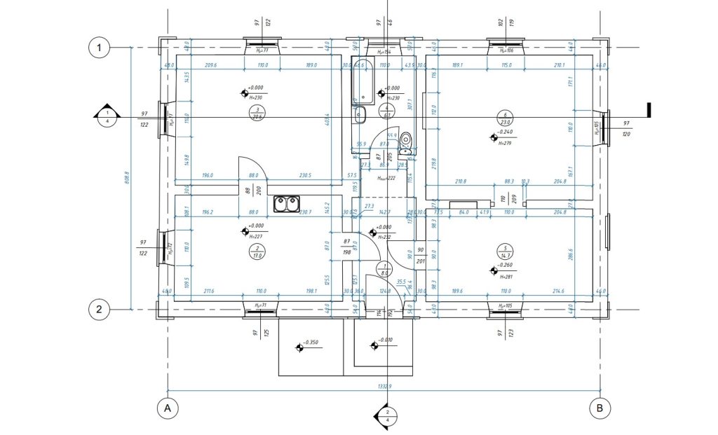
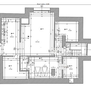
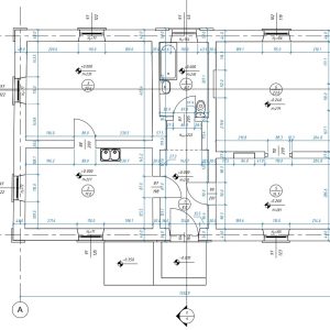
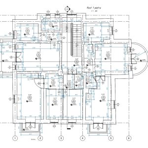
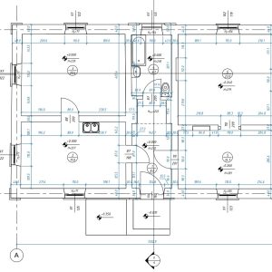
Example of 2D CAD Drawings from Real Projects
Below are examples of 2D CAD documentation created from laser scanning and point cloud data. These drawings include floor plans, sections, and technical layouts developed for real construction and industrial projects.
Each project demonstrates the level of detail, accuracy, and clarity required for engineering documentation and construction workflows.
Benefits of Professional CAD Drafting Services
Professional CAD drafting services provide several key advantages for engineering and construction teams:
- High accuracy and consistency
- Reduced risk of design errors
- Faster project turnaround
- Improved coordination between teams
- Reliable documentation for construction and approvals
When combined with scan to BIM services, CAD documentation becomes part of a larger digital workflow that improves overall project efficiency.
CAD Documentation vs BIM Modeling
While 2D CAD drawings are essential for documentation, many projects require further development into BIM models. In such cases, CAD files can be used as a base for CAD to BIM services, allowing engineers to transform 2D drawings into intelligent 3D models for coordination and analysis.
| Feature | 2D CAD Documentation | BIM Modeling |
|---|---|---|
| Output | 2D drawings | 3D intelligent model |
| Data type | Geometry only | Geometry + data |
| Use case | Documentation | Design & coordination |
| Accuracy | High | Very high |
| Cost | Lower | Higher |
| Best for | As-built drawings | Complex coordination |
| Integration | Limited | Full BIM workflows |
While BIM is increasingly used for complex projects, 2D CAD documentation remains essential for execution drawings, approvals, and technical records.
Our 2D CAD Documentation Workflow
We follow a structured workflow to ensure accuracy and consistency in every project:
1. Data Collection Using 3D Laser Scanning or Existing Drawings
We collect project data using advanced 3D laser scanning services or existing drawings provided by the client.
2. Point Cloud Processing and Registration
Captured scan data is processed and aligned into a unified point cloud to ensure accurate spatial representation.
3. CAD Drafting from Point Cloud Data (Scan-to-CAD)
Using scan-to-CAD workflows, our specialists convert point cloud data into precise 2D CAD drawings and technical documentation.
4. Quality Control of CAD Drawings and Technical Documentation
All drawings undergo strict quality checks to ensure accuracy, consistency, and compliance with project requirements.
5. Delivery of 2D CAD Documentation and As-Built Drawings
Final deliverables include complete 2D CAD documentation, including as-built drawings ready for construction, planning, or facility management.
By integrating 3D laser scanning services into our workflow, we ensure that all CAD documentation is based on precise, real-world data.
CAD Drafting Using AutoCAD and Professional Tools
Our team uses industry-standard software such as AutoCAD to create detailed and accurate technical drawings. This allows us to maintain compatibility with client requirements and industry workflows.
AutoCAD ensures:
- precise geometry
- standardized drawing formats
- easy integration with other engineering tools
Combined with advanced data processing, this enables efficient and scalable CAD documentation for projects of any size.
Accuracy and Quality Standards
Accuracy is critical in CAD documentation, especially for engineering and construction projects.
We apply strict quality control procedures to ensure:
- millimeter-level accuracy
- consistency across drawings
- compliance with project specifications
- clear and readable documentation
Our experience with as-built drawings ensures that every project reflects actual site conditions rather than assumptions.
Why Choose ScanM2
ScanM2 provides a full-cycle approach to digital documentation, from data capture to final deliverables.
Our advantages include:
- expertise in scan-to-CAD and BIM workflows
- experience in complex industrial and commercial projects
- integration of scanning, CAD, and BIM services
- international project delivery
We combine engineering expertise with advanced technologies to deliver reliable documentation for modern construction and industrial projects.
When You Need 2D CAD Documentation
2D CAD documentation is especially important in the following situations:
- missing or outdated drawings
- renovation or reconstruction projects
- facility upgrades and modernization
- compliance and documentation requirements
- industrial equipment layout planning
In these cases, accurate CAD drawings become the foundation for safe and efficient project execution.
FAQ
What are 2D CAD documentation services?
2D CAD documentation services involve creating technical drawings such as floor plans, sections, and elevations used in construction and engineering projects.
Can you create CAD drawings from point cloud data?
Yes, we provide CAD drawings from point cloud data using scan-to-CAD workflows based on laser scanning.
Do you use AutoCAD for drafting?
Yes, we use AutoCAD and other professional tools to produce accurate and standardized CAD drawings.
What is the difference between CAD and BIM?
CAD focuses on 2D drawings, while BIM provides a 3D model with embedded data for coordination and analysis.
When should CAD documentation be used?
CAD documentation is essential for construction drawings, as-built documentation, renovation projects, and technical records.


































