As-Built Plans & Accurate Survey Documentation in the USA
Creating reliable as-built plans is a critical step in ensuring the long-term safety, compliance, and maintainability of any building. At SCANM2, we deliver high-accuracy as-built plans, survey plans, and floor plans based on professional 3D laser scanning and precise architectural documentation.
Whether you need as-built floor plans, an as-built site plan, an as-built survey plan, or full architectural as-built documentation, we capture every dimension, installation, and field condition exactly as it exists.
What Is an As-Built Plan?
An as-built plan is a technical drawing that reflects the actual, final condition of a building after construction, renovation, or years of operation. Unlike design drawings, as-built plans incorporate:
- all field modifications
- deviations from original intent
- accurate measured dimensions
- locations of structural and MEP systems
- verified site conditions
As-built plans are essential for facility management, safety compliance, renovations, permit submissions, and long-term planning.
Types of As-Built Plans We Provide
ScanM2 delivers a full range of U.S.-standard as-built documentation:
As-Built Survey Plans
Documenting the real site layout, boundaries, elevations, and all external structures.
As-Built Survey Plans provide a verified, measured representation of the actual site conditions after construction, excavation, or land development activities. Unlike design site plans, which reflect intended layouts, survey as-builts show what exists today — with precise coordinates, elevations, and geospatial accuracy.
These plans are essential for:
- permitting and regulatory compliance
- civil engineering and grading corrections
- stormwater drainage verification
- utility mapping (water, sewer, electrical, telecom)
- property line confirmation and encroachments
- inspection close-out and project certification
ScanM2 uses 3D laser scanning, total stations, and drone photogrammetry to deliver high-accuracy site as-builts with centimeter or sub-centimeter precision.
Included elements:
Final grading & topography
- Elevations and spot heights
- Boundary and easement confirmation
- Roads, sidewalks, parking layouts
- Retaining walls & site walls
- Drainage systems and manholes
- Utility locations & invert elevations
- Landscape features
- As-built site structures (sheds, pads, slabs, foundations)
Architectural As-Built Plans
Precise drawings for renovations, historical restorations, or new project planning.
Architectural As-Built Plans represent the true, measured state of a building’s interior and exterior dimensions. These plans are required before any renovation, remodeling, extension, or adaptive reuse project, because inaccuracies in existing drawings lead to costly design conflicts and change orders.
ScanM2 produces architectural as-builts using 3D laser scanning, ensuring millimeter-level accuracy across all building elements.
Applications:
- Residential & commercial remodeling
- Historical preservation & heritage documentation
- Space planning, leasing, and real estate transactions
- Pre-design stage for architects
- Interior build-outs & tenant improvements
- Facility management and digital twins
Included elements:
- Floor plans (2D / 3D)
- Interior and exterior wall geometry
- Door and window schedules
- Ceiling heights & RCP layouts
- Staircases & vertical circulation
- Exterior elevations & façade geometry
- Roof plans and parapet details
- Structural elements visible on site
Construction As-Built Plans
Created for contractors, engineers, and developers to document what was actually built.
Construction As-Built Plans reflect every deviation from design drawings that occurred during the construction phase. They are critical for close-out packages, warranty documentation, inspection approval, future renovations, and legal compliance.
ScanM2 compiles contractor redlines, RFIs, field changes, and 3D scan data into a unified, accurate final drawing set.
Used by:
- General contractors
- Mechanical, electrical & plumbing subcontractors
- Developers & owners
- Facility managers
- Building inspectors & permitting authorities
Included elements:
- Final routing of MEP systems (ducts, pipes, conduits)
- Updated structural changes
- Actual material installation
- Equipment locations & connections
- Field modifications vs. coordinated shop drawings
- Underground utility adjustments
- Site and grading corrections
- Any deviations mandated by RFIs or inspector requirements
As-Built Floor Plans (2D & CAD)
Includes accurate wall layouts, dimensions, openings, room areas, and architectural details.
MEP As-Builts (Mechanical, Electrical & Plumbing)
- as-built electrical plan
- as-built plumbing plan
- as-built drainage plan
Ideal for maintenance, repairs, and conflict-free future upgrades.
Why As-Built Plans Matter — Backed by Real Industry Data
According to Autodesk & FMI’s Construction Study (2023):
- 62% of construction rework is caused by inaccurate or outdated drawings.
- Projects with accurate as-builts experience 30% fewer change orders.
- High-quality as-built documentation reduces renovation risks by up to 45%.
Accurate as-built plans are not optional — they are essential.
How ScanM2 Creates High-Accuracy As-Built Plans
We follow a proven, engineering-grade workflow:
1. 3D Laser Scanning (±2–3 mm accuracy)
Captures millions of precise data points in a detailed point cloud.
2. On-Site Survey & Field Verification
We confirm all architectural, structural, and MEP conditions.
3. CAD or BIM As-Built Plan Production
We convert the scan into:
- 2D as-built plans (DWG, PDF)
- As-built floor plans
- As-built survey plans
- As-built architectural drawings
- Full as-built BIM models (if required)
4. Final QA Review
Every plan undergoes multi-stage verification to ensure compliance and accuracy.
Comparison — As-Built Plans vs Design Plans
| Category | Design Plans | As-Built Plans |
|---|---|---|
| Represents | Intended conditions | Actual built conditions |
| Created | Before construction | After construction |
| Accuracy | Approximate | Field-verified (scan-based) |
| Includes | Planned layout | Real dimensions, deviations |
| Used For | Permits, coordination | Renovations, operations, liability |
| Risk Level | Medium | Low — based on reality |
Key Benefits of SCANM2 As-Built Plans
✔ Millimeter-level accuracy
✔ Faster renovation planning
✔ Reduced construction risk
✔ Accurate record for future projects
✔ Compliance with U.S. building requirements
✔ Ideal for architects, engineers, contractors, and property owners
✔ Fully CAD-ready deliverables
Industries We Serve
- Commercial buildings
- Multi-family residential
- Industrial facilities
- Schools & universities
- Retail centers
- Healthcare buildings
- Historic properties
- Government buildings
As-Built Plans Cost (USA)
| Factor | Description | How It Affects Cost |
|---|---|---|
| Building Size | Total square footage of the property | Larger spaces require more scanning time and more drawings → higher cost |
| Level of Detail (LOD) | LOD 100–400 depending on project requirements | Higher LOD = more modeling, more accuracy = increased price |
| Number of Drawings | Quantity of floor plans, elevations, sections, MEP layouts | More deliverables = more hours of drafting/modeling |
| Project Complexity | Architectural vs. MEP, irregular shapes, tight spaces, obstructions | Complex buildings or MEP-heavy environments cost more |
| BIM Requirement | Revit 3D model vs. 2D CAD plans | BIM models significantly increase required production time |
Typical Pricing in the U.S. Market
| Service Type | Typical Price Range |
|---|---|
| 2D As-Built Floor Plans | $0.25–$0.85 per sq ft |
| Full As-Built Documentation (large buildings) | $2,500–$15,000+ |
| BIM As-Built Model (Revit) | usually $1.5–$3.5 per sq ft |
| As-Built Survey / Site Plan | $1,200–$8,000+ depending on acreage |
| MEP As-Built Plans | depends heavily on system density — typically $3,000–$20,000+ |
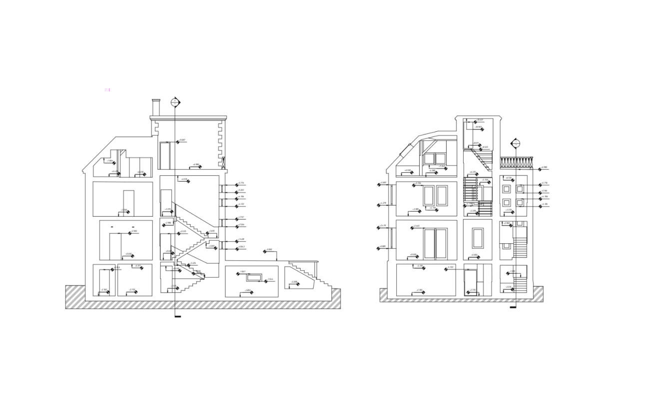
As-Built Plan Examples
As-Built Plan Results
What is an as-built plan?
A drawing that shows the real condition of a building after construction is completed.
What are as-built plans used for?
Renovations, permits, maintenance, documentation, safety planning, and legal requirements.
What is included in an as-built plan?
Accurate measurements, field changes, real wall locations, door/window positions, and MEP systems.
How much do as-built plans cost?
Between $0.25 and $0.85 per sq ft on average depending on complexity.
Do you provide as-built survey plans?
Yes, ScanM2 provides full site as-builts, survey plans, and elevation maps.
Can you create CAD and BIM as-built plans?
Yes — DWG, PDF, RVT, IFC, and more.
Get a Quote for As-Built Plans
SCANM2 provides nationwide as-built plans with precise 3D scanning and engineering-level documentation.








