As-Built Drawings for Metallurgical Plants
Accurate as built drawings steel plant documentation is essential for maintaining metallurgical facilities and supporting modernization programs. Steel production plants operate with complex infrastructure including furnaces, rolling lines, heavy transport systems, utilities, and process pipelines. Over time, equipment replacements, expansions, and repairs lead to deviations from original design documentation.
As-built documentation records the actual condition of the facility after construction or modification. Updated drawings provide reliable information about structural systems, equipment placement, and engineering networks required for safe operation, maintenance planning, and integration of new production units.
Contact Us Now for a Free Consultation!
Importance of As-Built Documentation in Steel Production Facilities
Metallurgical plants undergo continuous upgrades due to equipment wear, process improvements, and environmental compliance requirements. Without updated documentation, engineering teams face difficulties when planning reconstruction, installing new equipment, or coordinating maintenance shutdowns.
As-built drawings provide:
- Verified layout of production buildings and industrial structures
- Actual positioning of furnaces, rolling mills, conveyors, and material handling systems
- Accurate routing of pipelines, ventilation, and utilities
- Reliable reference data for modernization and expansion projects
Proper documentation significantly reduces engineering risks when modifying existing facilities.
Scope of As-Built Drawings for Metallurgical Plants
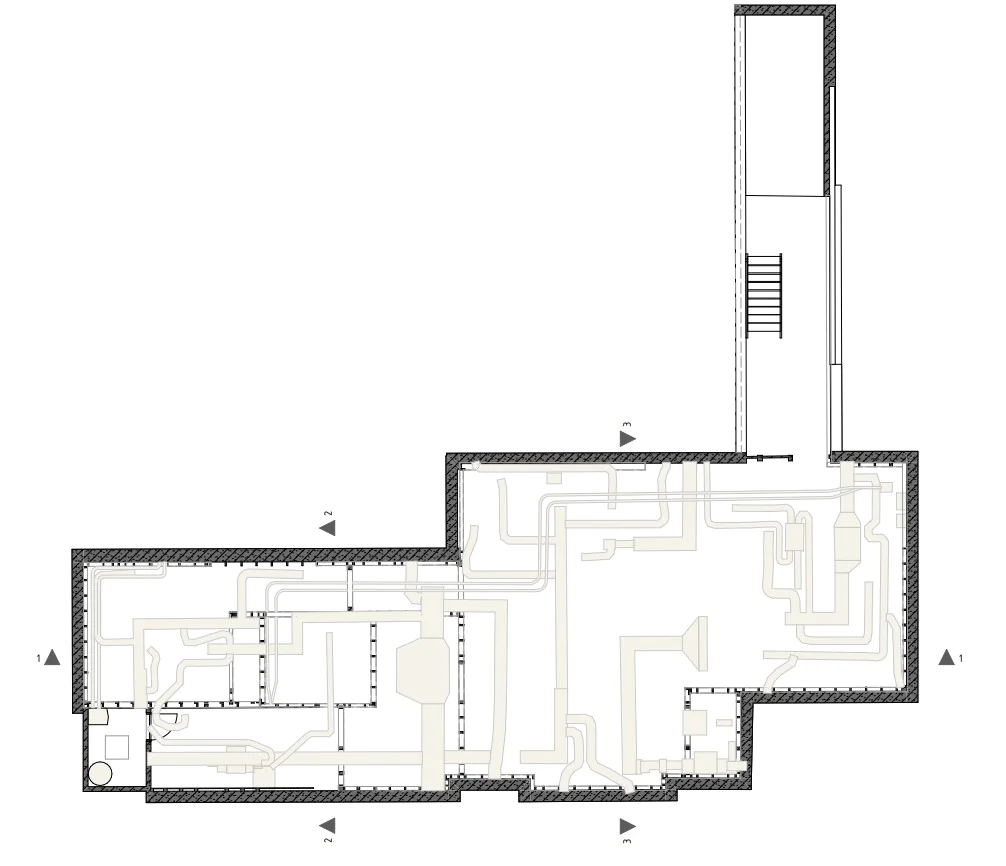
The preparation of as built drawings metallurgical plant documentation includes detailed recording of building structures, production equipment, and technical systems throughout the facility.
Typical documentation scope includes:
Structural documentation
- Workshop structures and production halls
- Steel frames, foundations, and platforms
- Crane beams and heavy load-bearing structures
Industrial equipment layout
- Blast furnaces, electric arc furnaces, converters
- Continuous casting machines
- Rolling mill lines and finishing equipment
Infrastructure and utilities
- Gas, water, and compressed air pipelines
- Dust collection and ventilation systems
- Cable trays and electrical distribution networks
Process plant layout drawings
- Raw material handling systems
- Slag removal and transport systems
- Cooling systems and auxiliary installations
These drawings form the basis for reliable plant engineering documentation.
Data Collection and Documentation Process

As-built documentation begins with on-site data acquisition to capture the current configuration of the facility.
The process typically includes:
- Site inspection and facility assessment
Identification of production areas, equipment clusters, and infrastructure zones requiring documentation. - Digital capture of existing structures
High-precision scanning technologies are often used to record geometry and spatial relationships of industrial equipment and buildings. - Engineering analysis and modeling
Collected data is processed to produce accurate drawings and coordinated plant layouts. - Preparation of technical documentation
Final deliverables include verified drawings, layouts, and engineering documentation suitable for maintenance and future upgrades.
Data acquisition is frequently supported by 3D Laser Scanning technologies that capture complex industrial geometry with high accuracy.
Integration with Digital Engineering Workflows
Modern metallurgical facilities increasingly rely on digital models to support plant operation and long-term infrastructure management.
As-built documentation can be integrated into:
- BIM Modeling environments for industrial facilities
- Scan to BIM workflows for converting scanned data into structured models
- Engineering analysis for equipment upgrades and plant modernization
When documentation of existing machinery is required, reverse engineering techniques may be applied using reverse engineering for metallurgical equipment .
Applications in Steel Plant Modernization
Accurate steel mill infrastructure drawings support multiple operational and engineering tasks:
- Planning installation of new furnaces and rolling lines
- Reconstruction of production workshops
- Utility system upgrades
- Safety compliance and risk analysis
- Integration of automation and monitoring systems
Reliable documentation ensures that engineering teams work with verified plant layout information rather than outdated design drawings.
Deliverables
Typical deliverables for metallurgical facilities include:
- Updated plant layout drawings
- Steel mill infrastructure drawings
- Equipment layout documentation
- Process plant layout drawings
- Utility and pipeline documentation
- Digital models for engineering coordination
All drawings reflect the actual configuration of the plant at the time of survey.
FAQ
What are as-built drawings for a metallurgical plant?
As-built drawings are engineering documents that represent the actual configuration of buildings, structures, equipment, and technical systems after construction or modification. They differ from original design drawings because they reflect real conditions at the facility.
Why are as-built drawings important for steel mills?
Steel mills undergo frequent equipment replacement and infrastructure upgrades. Accurate documentation helps engineers plan modernization projects, install new equipment safely, and avoid conflicts with existing structures and utilities.
What technologies are used to create as-built documentation?
Modern documentation often uses laser scanning, digital surveying, and engineering modeling tools to capture facility geometry and produce coordinated plant layout drawings.
When should a steel plant update its documentation?
Documentation should be updated after equipment installation, reconstruction of production workshops, infrastructure modifications, or large maintenance projects to ensure engineering data remains accurate.
