As-Built Drawings for Ore processing plants
As-built drawing services for ore processing plants help engineering teams work with current site conditions instead of outdated documentation. For modernization, maintenance, equipment replacement, and reconstruction projects, verified drawings provide a reliable basis for planning conveyors, steel structures, piping routes, platforms, and process areas before work starts on site.
We prepare field-verified as-built drawings for ore processing plants to support plant upgrades, shutdown planning, contractor packages, and internal engineering tasks. The result is a clear and usable drawing set that reduces uncertainty and improves preparation for work in active industrial facilities.
Contact Us Now for a Free Consultation!
Why Ore Processing Plants Need Updated As-Built Documentation
In ore processing facilities, even small deviations in levels, offsets, support locations, or equipment positions can affect installation works and shutdown planning. This becomes especially important in crusher areas, grinding sections, conveyor galleries, flotation zones, and material handling routes where many systems are closely connected.
Updated documentation is typically required when:
- legacy plant drawings no longer match actual conditions
- the facility has been modified over multiple project stages
- maintenance teams need current layout documentation
- contractors require verified dimensions before fabrication or installation
- reconstruction work depends on accurate sections and elevations
- equipment replacement must be planned around existing constraints
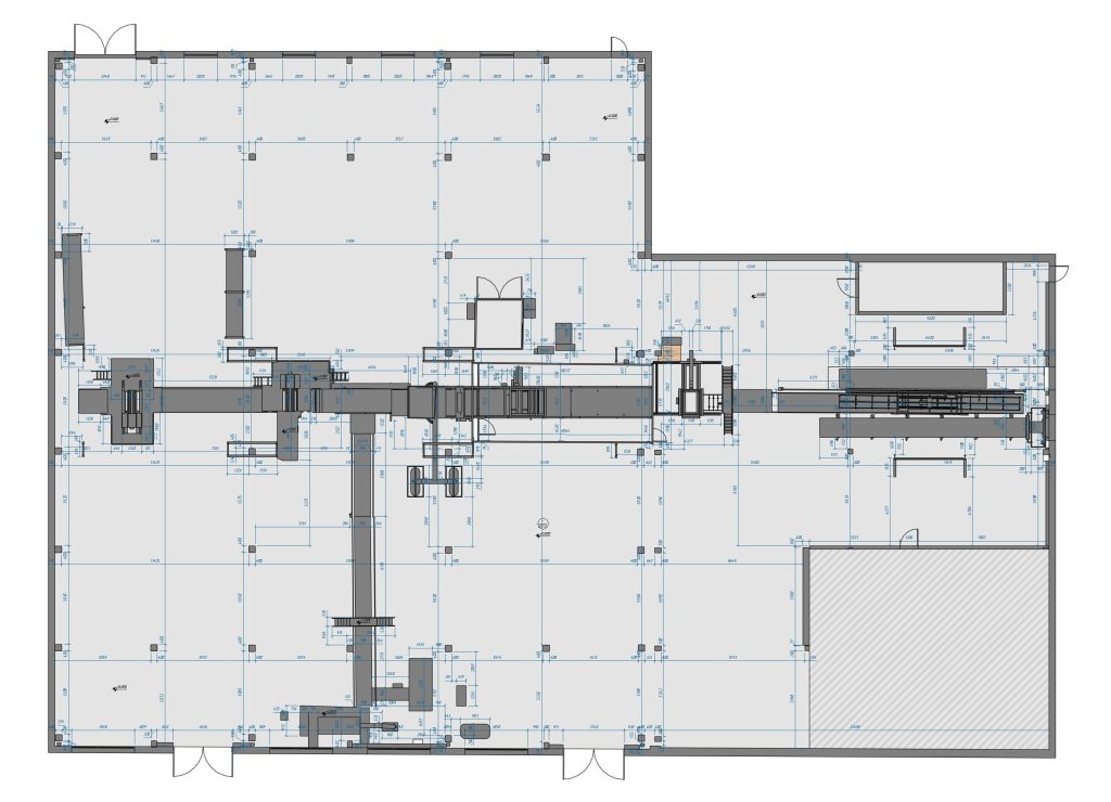
What Is Included in As-Built Drawings for Ore Processing Plants
The scope of existing condition drawings for ore processing plants depends on the task, but a typical drawing package may include:
- existing condition floor plans
- equipment layout drawings
- sections through production areas
- elevations of structural and process zones
- conveyor and transfer point layouts
- piping arrangement drawings
- platform, ladder, and stair drawings
- structural framing drawings
- foundation and slab drawings where required
- measured layouts of access and maintenance areas
These measured drawings for ore processing plants are prepared to document the current arrangement of plant structures, process areas, and operational interfaces in a form suitable for engineering use.
As-Built Drawings for Crusher Plant, Mill Area, and Conveyor Layouts
As-Built Drawings for Crusher Plant
As-built drawings for crusher plant areas are used to document support frames, feed and discharge zones, service platforms, adjacent equipment areas, and structural interfaces. They help teams understand the current layout before replacing machinery or modifying surrounding steel.
As-Built Drawings for Grinding Mill Area
As-built drawings for grinding mill area work typically includes plans and sections showing mill surroundings, access structures, support levels, piping routes, and nearby structural elements. In these zones, updated documentation is important for retrofit planning and equipment-related works.
As-Built Drawings for Conveyor Systems in Ore Processing Plants
As-built drawings for conveyor systems in ore processing plants are used for conveyor galleries, transfer points, support structures, discharge zones, and access routes. They provide the dimensional basis needed for conveyor replacement, line extension, and maintenance planning.
Field-Verified Drawings for Piping, Steel Structures, and Material Handling Systems
Ore processing plants depend on the coordination of process lines, support steel, and material handling infrastructure. For that reason, field-verified documentation often includes:
- as-built drawings for industrial piping in ore processing plants
- as-built drawings for structural steel in ore processing plants
- as-built drawings for material handling systems
These drawings help document tie-in locations, routing changes, support elevations, steel member positions, access restrictions, and clearances around operational equipment. Where required, the source information for these drawings can be supported by 3D Laser Scanning and prepared through Point Cloud Processing before drafting begins.
When As-Built Drawings Are Needed in Ore Processing Plants
As-built documentation is commonly prepared in the following situations:
- before plant modernization or reconstruction
- before replacing conveyors or process equipment
- before structural modifications
- before piping tie-ins
- before shutdown works
- for maintenance documentation
- for contractor tender packages
- for internal engineering records
- for comparison between current conditions and design intent
In some projects, the drawing package also becomes the basis for later BIM Modeling or Scan to BIM development, but the primary deliverable remains a clear set of updated engineering drawings.
Table: Typical As-Built Drawing Deliverables for Ore Processing Plants
| Drawing Type | Practical Use |
|---|---|
| Existing condition floor plans | Layout review and planning |
| Equipment layout drawings | Replacement and relocation planning |
| Sections through process areas | Vertical coordination and clearance checks |
| Structural drawings | Steel modification and support review |
| Piping drawings | Tie-in and routing preparation |
| Conveyor and transfer point drawings | Upgrade and maintenance planning |
| Elevations of plant zones | Engineering review and documentation |
Examples of As-Built Drawing Packages for Ore Processing Plants
As-Built Documentation Examples
How As-Built Drawings Support Reconstruction and Maintenance
A verified drawing package improves communication between engineering teams, contractors, maintenance personnel, and plant operations. Instead of relying on outdated plant records, project teams can work with current plans and measured sections that reflect the actual arrangement of the facility.
For ore processing plants, this helps:
- reduce dimensional uncertainty before installation
- improve tie-in planning
- support fabrication based on real conditions
- lower rework risk during plant shutdowns
- document existing conditions for future upgrades
- create a more reliable base for phased reconstruction
Where plant components need geometry redevelopment for manufacturing or replacement, selected scopes may also connect with Reverse Engineering.
As-built drawings for ore processing plants provide a practical documentation set based on current site conditions. For crusher stations, mill areas, conveyor systems, piping, structural steel, and material handling zones, this documentation supports reconstruction, maintenance, and equipment-related work with clearer dimensional control.








