CAD Outsourcing Company in the USA – Drafting, Conversion & Design Support
2D drafting, 3D CAD models, CAD conversion, and technical documentation from U.S.-based specialists.
Save time, reduce costs, and scale your design capacity without hiring additional staff.
Request a free CAD outsourcing quote within 24 hours!
What Is CAD Outsourcing?
CAD outsourcing means partnering with an external provider like ScanM2 to prepare shop drawings, 2D/3D CAD models, CAD conversions, and construction documentation. Instead of expanding your in-house design department, you gain on-demand access to CAD outsourcing consultants with expertise in U.S. standards.
Our CAD outsourcing services include:
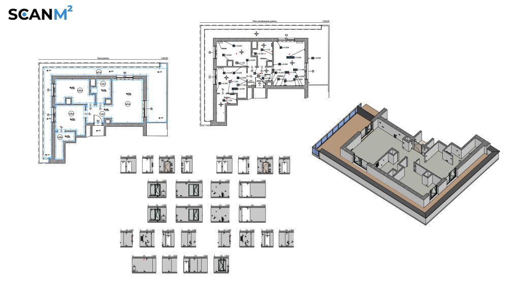
- 2D CAD drafting – plans, elevations, sections, details, and shop drawings.
- 3D CAD modeling – structural steel, prefabricated elements, industrial equipment.
- Paper-to-CAD conversion – digitizing old paper or scanned drawings into CAD formats.
- 2D-to-3D CAD conversion – enhancing 2D drawings into 3D models for visualization and simulation.
- MEP drafting support – HVAC, plumbing, and electrical layouts.
- Drafting and CAD conversion services for architects, contractors, and industrial firms.
Our CAD work often begins with 3D laser scanning, ensuring documentation is based on verified site data. By integrating point clouds directly into CAD drafting and conversion workflows, we provide survey-grade accuracy and reliable geometry for 2D-to-3D CAD conversion, paper-to-CAD conversion, and complex MEP drafting. This technical approach guarantees precision, consistency, and minimizes errors across all outsourced CAD services.
Who Benefits from CAD Outsourcing?
- Architects & design studios – needing extra drafting or conversion support during deadlines.
- General contractors – requiring shop drawings, fabrication details, and CAD conversions fast.
- Structural engineers – offloading repetitive drafting to focus on design and analysis.
- Real estate developers & facility managers – requesting renovation drawings or digitizing legacy plans.
- Industrial firms – seeking accurate CAD models of plants, machinery, or piping systems.
Business Benefits of Outsourcing CAD
Outsourcing CAD design, drafting, and conversion services in the USA provides measurable advantages for architects, contractors, engineers, and facility managers. By choosing to outsource CAD drawings, outsource drafting services, or partner with CAD outsourcing consultants, you gain flexibility and precision without expanding your in-house staff.
- Cost savings – no software licensing or hiring overhead; pay only for completed deliverables.
- Speed – accelerated delivery with large-scale CAD drafting and conversion teams.
- Scalability – expand or reduce capacity as project demand shifts.
- Compliance – aligned with ISO, AIA, ANSI, and DIN standards.
- Expertise – AutoCAD, Revit, ArchiCAD, SolidWorks, Navisworks specialists.
- Efficiency – outsourced teams work in parallel with your staff to shorten project timelines.
Reverse Engineering with CAD
Reverse engineering services turn physical parts and assemblies into accurate CAD drawings and 3D models. By combining 3D scanning with CAD conversion, we help manufacturers, contractors, and engineers reproduce, modify, or optimize existing equipment and components. This is especially valuable for legacy parts without documentation, custom fabrication, and product improvement projects.
CAD Outsourcing + 3D Laser Scanning
At ScanM2, we combine CAD outsourcing with advanced 3D scanning:
- Accurate – point cloud-based drawings with ±2 mm precision.
- Faster – up to 1000 m² captured per day, reducing survey and drafting time.
- Error-free – eliminates missing measurements and costly rework.
- Complete – documentation ready for permitting, fabrication, and coordination.

U.S. CAD Outsourcing Project Examples
- Hospital Project – Large-Scale Healthcare Facility Scanning
- Historic Brooklyn Mansion Revived with BIM Services and 3D Scanning
- Dalma Mall – Large Commercial 3D Scanning Project
Our CAD Outsourcing Process
- Consultation – define scope, file formats, and deliverables.
- Quote in 24h – fixed price with no hidden fees.
- Execution – CAD specialists create drawings, models, or conversions.
- Quality control – multi-stage verification for accuracy and compliance.
- Delivery – DWG, PDF, RVT, IFC, or custom formats.
Why Choose ScanM2 as Your CAD Outsourcing Partner?
- 10+ years of experience in CAD drafting, conversion, and modeling.
- Nationwide coverage with U.S.-based experts.
- Expertise across architecture, construction, industrial, and MEP sectors.
- Flexible engagement – one-time projects or ongoing outsourcing partnerships.
- Recognized among leading CAD outsourcing consultants in the USA.
FAQ – Outsource CAD Design & Drafting
Do you offer paper-to-CAD conversion?
Yes – we convert blueprints, sketches, or scanned files into accurate DWG and 3D CAD models.
Can you upgrade 2D drawings into 3D models?
Absolutely – our 2D-to-3D CAD conversion enhances visualization and simulation.
What industries do you serve?
We support commercial, residential, industrial, and infrastructure projects nationwide.
Do you provide long-term CAD support?
Yes – we act as an extended drafting team for architects, contractors, and facility managers.https://scanm2.com/portfolio/3d-scanning-hospital-project/
Ready to streamline your design process?
Outsource CAD drafting, conversion, and modeling to U.S. specialists and get precise deliverables on time and within budget.
