Szczegółowa dokumentacja kamienicy w Łomży – kompleksowa inwentaryzacja 3D obiektu o powierzchni 1100 m²
Wykonaliśmy kompleksową inwentaryzację architektoniczną kamienicy mieszkalno-usługowej w Łomży o łącznej powierzchni wnętrz około 1100 m². Zakres prac obejmował przygotowanie pełnej dokumentacji 2D oraz modelu 3D BIM na podstawie danych pozyskanych z naziemnego skaningu laserowego 3D. Projekt wymagał połączenia wysokiej dokładności pomiarowej, sprawnej organizacji prac terenowych oraz bardzo szybkiego opracowania materiałów projektowych.
Dzięki zastosowaniu technologii TLS oraz pracy bezpośrednio na chmurze punktów udało się znacząco skrócić czas realizacji przy zachowaniu wysokiej zgodności geometrycznej opracowania. Było to szczególnie ważne w przypadku kamienicy o złożonej strukturze, licznych detalach architektonicznych i rozbudowanym zakresie dokumentacji.
Przegląd projektu
Typ projektu: inwentaryzacja architektoniczna 3D do celów projektowych
Lokalizacja: Łomża
Typ obiektu: kamienica mieszkalno-usługowa
Powierzchnia wnętrz: ok. 1100 m²
Liczba kondygnacji: 5
Powierzchnia elewacji: ok. 400 m²
Cel: opracowanie kompletnej dokumentacji 2D oraz modelu 3D BIM na podstawie precyzyjnych danych pomiarowych.
Zakres opracowania
W ramach projektu przygotowaliśmy:
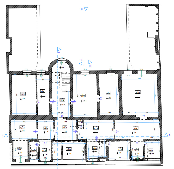
- rzuty wszystkich kondygnacji,
- dokumentację konstrukcji więźby dachowej,
- przekroje budynku,
- rysunki elewacji,
- podkłady elewacyjne generowane na bazie chmury punktów,
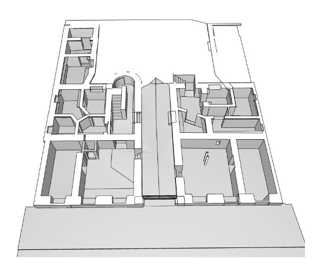
- model 3D w środowisku Archicad.
Celem było stworzenie spójnej i kompletnej bazy projektowej, która będzie mogła zostać bezpośrednio wykorzystana w dalszych etapach projektowania, analizy technicznej oraz koordynacji prac związanych z obiektem.
Wyzwania projektu
Złożona geometria kamienicy
Kamienice tego typu bardzo często charakteryzują się nieregularnym układem przestrzennym, zróżnicowaną geometrią ścian, stropów i klatek komunikacyjnych oraz dużą liczbą niestandardowych rozwiązań architektonicznych. W praktyce oznacza to, że dokumentacja musi być opracowana z bardzo dużą starannością, bez uproszczeń, które mogłyby utrudnić późniejsze wykorzystanie materiałów.
Wysoki poziom szczegółowości elewacji

Istotnym wyzwaniem było odwzorowanie elewacji wraz z detalami architektonicznymi. W tym celu przygotowaliśmy podkłady elewacyjne bezpośrednio z chmury punktów, co umożliwiło zachowanie wysokiej zgodności geometrycznej i stworzyło solidną podstawę do dalszego uszczegóławiania rysunków.
Presja czasowa
Zakładany czas realizacji wynosił 20 dni roboczych, jednak celem było jego wyraźne skrócenie bez utraty jakości. Projekt wymagał więc nie tylko dokładnego pomiaru, ale też bardzo sprawnego połączenia etapu skanowania, przygotowania chmury punktów oraz opracowania dokumentacji i modelu BIM.
Dane techniczne i dokładność
Do realizacji wykorzystaliśmy naziemny skaning laserowy 3D (TLS). Dane pomiarowe zostały przygotowane w formatach .RCP oraz .E57, co zapewniło pełną kompatybilność z dalszymi pracami projektowymi. Dokumentacja i podkłady były generowane bezpośrednio z chmury punktów, co pozwoliło uzyskać wysoką zgodność geometryczną i ograniczyć ryzyko błędów charakterystycznych dla klasycznych metod ręcznego pomiaru.
Dokładność opracowania określono jako typową dla skaningu laserowego, czyli na poziomie kilku milimetrów, co w pełni odpowiada wymaganiom projektowym dla tego typu obiektów.
Metodologia realizacji
1. Skanowanie obiektu – 2 dni robocze
W pierwszym etapie przeprowadziliśmy kompleksowe skanowanie wnętrz wszystkich 5 kondygnacji oraz elewacji budynku. Celem było pozyskanie pełnej chmury punktów obejmującej zarówno układ przestrzenny wnętrz, jak i geometrię zewnętrzną obiektu.
2. Opracowanie chmury punktów – 1 dzień roboczy
Po zakończeniu prac terenowych wykonaliśmy rejestrację skanów, kontrolę dokładności oraz przygotowanie danych do dalszego opracowania. Ten etap miał kluczowe znaczenie dla zachowania spójności i jakości całego materiału wejściowego.
3. Opracowanie dokumentacji i modelu BIM – 7 dni roboczych
Na podstawie przygotowanej chmury punktów wykonaliśmy kompletną dokumentację 2D, obejmującą rzuty, przekroje i elewacje. Równolegle powstały podkłady elewacyjne z chmury punktów oraz model 3D w środowisku Archicad. Dzięki pracy na precyzyjnych danych pomiarowych możliwe było szybkie opracowanie dokumentacji przy zachowaniu wysokiej jakości technicznej.
Wyniki projektu

W ramach realizacji inwestor otrzymał pełen zestaw materiałów projektowych, obejmujący:
- chmurę punktów w formatach .RCP i .E57,
- dokumentację 2D w formatach DWG i PDF,

- model 3D BIM w plikach .PLN i .PLA dla środowiska Archicad,

- materiały dodatkowe w postaci podkładów elewacyjnych przygotowanych z chmury punktów.
Czas realizacji
Jednym z najważniejszych rezultatów projektu było znaczne skrócenie harmonogramu. Zakładany czas realizacji wynosił 20 dni roboczych, natomiast rzeczywisty czas wykonania wyniósł około 2 tygodni kalendarzowych. Oznacza to, że dzięki optymalizacji procesu oraz wykorzystaniu nowoczesnych metod pomiarowych projekt został zrealizowany ponad dwukrotnie szybciej niż pierwotnie zakładano.
Kluczowe korzyści dla inwestora
Znaczące skrócenie czasu realizacji
Projekt został ukończony w bardzo krótkim czasie, co pozwoliło szybciej przejść do kolejnych etapów prac projektowych i technicznych.
Wysoka precyzja opracowania
Cała dokumentacja została przygotowana bezpośrednio na podstawie dokładnych danych pomiarowych, co przełożyło się na wysoką jakość i wiarygodność materiałów.
Podkłady elewacyjne z chmury punktów
To rozwiązanie umożliwiło bardzo dokładne odwzorowanie elewacji i detali architektonicznych, co ma szczególne znaczenie przy pracy z historyczną lub wielokondygnacyjną zabudową.
Nowoczesne podejście do inwentaryzacji
Wykorzystanie skaningu 3D i pracy na chmurze punktów znacząco usprawniło cały proces i pozwoliło połączyć szybkość realizacji z wysoką jakością końcowych materiałów.
Podsumowanie
Ten projekt pokazuje, jak ScanM2 realizuje złożone inwentaryzacje budynków wielokondygnacyjnych w krótkim czasie i z wysoką precyzją. W przypadku kamienicy w Łomży połączyliśmy kompleksowy zakres opracowania, szczegółowe odwzorowanie elewacji oraz przygotowanie modelu BIM w środowisku Archicad w ramach jednego, sprawnie przeprowadzonego procesu.
Efektem była kompletna dokumentacja projektowa, która może zostać bezpośrednio wykorzystana przez projektantów i branżystów bez potrzeby dodatkowego pomiaru czy korekt danych.
