Inwentaryzacja 3D poddasza pod nową aranżację mieszkalną
Przeprowadziliśmy szczegółową inwentaryzację architektoniczną poddasza przeznaczonego do przyszłej adaptacji mieszkalnej. Tego typu przestrzenie często charakteryzują się nieregularną geometrią wynikającą ze spadków dachu, obecności belek konstrukcyjnych oraz zmiennej wysokości pomieszczeń.
Dokładne rozpoznanie istniejącej struktury budynku jest kluczowe przed rozpoczęciem prac projektowych. Dzięki wykorzystaniu nowoczesnych metod pomiarowych możliwe było szybkie i precyzyjne odwzorowanie geometrii poddasza oraz przygotowanie dokumentacji niezbędnej do dalszego projektowania wnętrz.
Przegląd projektu
Typ projektu: Inwentaryzacja 3D poddasza pod projekt podziału wnętrz
Lokalizacja: Warszawa, Sadyba
Powierzchnia: ok. 100 m²
Cel: Przygotowanie edytowalnego modelu SketchUp, dokumentacji 2D (rzuty i przekroje) oraz szczegółowej inwentaryzacji wykończenia i komunikacji.
Wyzwania projektu


Złożona geometria poddasz
Poddasza w istniejących budynkach bardzo często posiadają nieregularne kształty wynikające z konstrukcji dachu. Skosy, elementy więźby dachowej oraz zmienna wysokość pomieszczeń sprawiają, że tradycyjne pomiary ręczne mogą być czasochłonne i obarczone ryzykiem błędów.
Dokładne odwzorowanie tych elementów było kluczowe, ponieważ wpływają one bezpośrednio na możliwości przyszłej aranżacji przestrzeni mieszkalnej.
Ograniczona dostępność niektórych fragmentów
W części poddasza dostęp do niektórych miejsc był utrudniony ze względu na konstrukcję dachu i układ pomieszczeń. W takich przypadkach zastosowanie technologii skanowania 3D pozwala na szybkie zebranie danych bez konieczności wykonywania wielu pomiarów manualnych.
Przygotowanie przestrzeni pod nowy układ funkcjonalny
Celem projektu było stworzenie dokładnej bazy danych dla architektów przygotowujących nową aranżację mieszkalną. Dokumentacja musiała uwzględniać między innymi:
- dokładną geometrię skosów dachowych
- rozmieszczenie elementów konstrukcyjnych
- wysokości pomieszczeń
- układ komunikacji
Metodologia
Pierwszym etapem projektu było wykonanie szczegółowych pomiarów przestrzeni poddasza. Na tej podstawie powstała cyfrowa reprezentacja istniejącego stanu budynku.
Zebrane dane pomiarowe zostały następnie opracowane w środowisku projektowym, gdzie przygotowano dokładną dokumentację architektoniczną oraz model przestrzeni.
Opracowanie dokumentacji


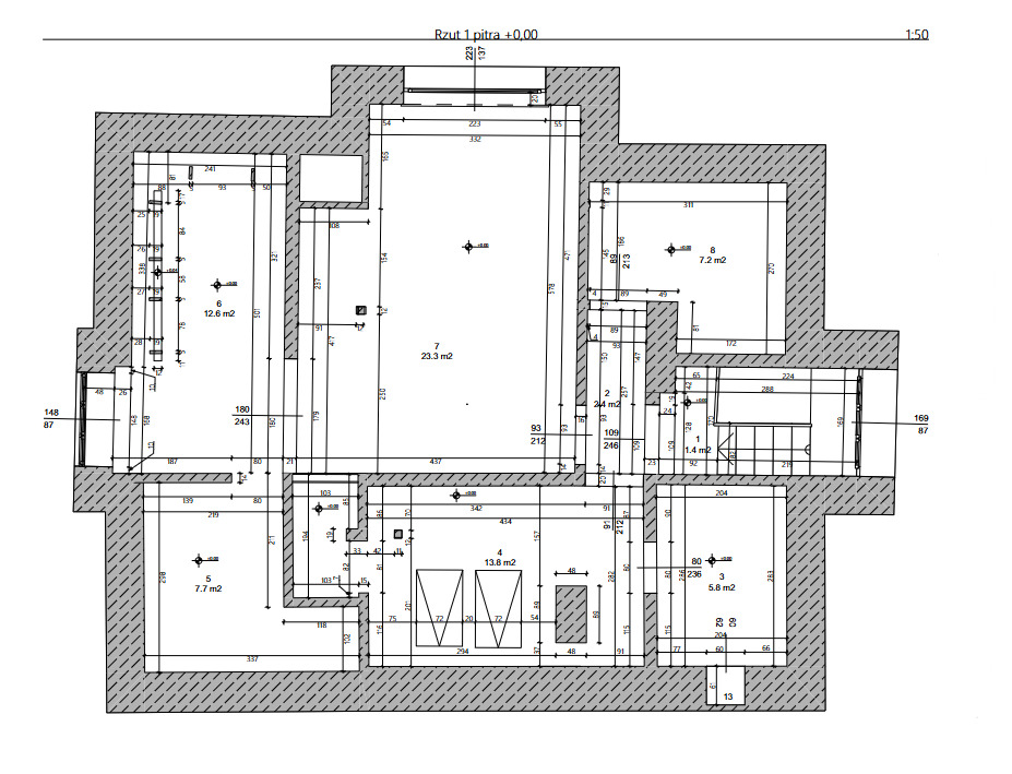
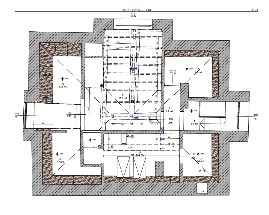
Na podstawie zebranych danych przygotowano kompletną dokumentację obejmującą:
- rzuty poddasza
- przekroje pokazujące geometrię dachu
- model 3D w programie SketchUp
Model został przygotowany w formie edytowalnej, co umożliwia architektom bezpośrednią pracę na nim podczas projektowania nowego układu funkcjonalnego mieszkania.
Wyniki projektu
Efektem realizacji była kompletna dokumentacja przestrzeni poddasza, która stanowi solidną podstawę do dalszych prac projektowych.

Dzięki dokładnej inwentaryzacji możliwe jest:
✔ precyzyjne zaplanowanie nowego układu pomieszczeń
✔ uniknięcie błędów pomiarowych na etapie projektu
✔ przyspieszenie procesu projektowania
Architekci otrzymali szczegółowy model oraz dokumentację pozwalającą bezpiecznie przejść do kolejnego etapu prac – projektowania nowej przestrzeni mieszkalnej.
