3D Laser Scanning of a Duplex Apartment in UAE
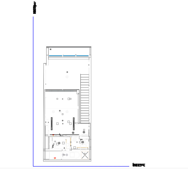
The project involved high-precision 3D laser scanning of a duplex apartment with a total area of approximately 90 m². The property consists of two levels connected by an internal staircase and includes compact living spaces with multiple architectural and interior elements.
The main objective was to create an accurate digital representation of the apartment’s existing condition. The collected data was used to prepare detailed 2D drawings and serve as a reliable base for interior design, renovation planning, and technical coordination.
Due to the complexity of the vertical layout and the density of interior elements, particular attention was paid to capturing all architectural features with high accuracy and ensuring proper alignment between both levels.
Project Overview
Project Type: 3D laser scanning of a duplex apartment
Location: Marsa Al Arab
Area: ~90 m²
Object Type: Residential duplex apartment
Project Goal
To perform 3D laser scanning and deliver accurate 2D documentation and point cloud data for interior design, renovation, and technical coordination.
Provided Services
- 3D laser scanning of the apartment (both levels)
- point cloud processing
- preparation of 2D drawings
- optional 3D modeling based on scan data
Project Challenges
Vertical Layout
The apartment consists of two levels connected by an internal staircase. This required careful planning of scan positions to ensure correct vertical alignment and seamless integration of both levels into a single coordinated dataset.
Limited Space and Furniture Density
Compared to large villas, compact apartments typically have a higher density of furniture and interior elements. This increased the complexity of scanning and required precise placement of scan stations to avoid blind zones and ensure full spatial coverage.
Interior Architectural Details
The project required accurate capture of:
- wall geometry
- ceilings
- staircase structure
- openings (doors and windows)
- built-in interior elements
This level of detail was essential for future interior design and renovation works.
Data Acquisition
Terrestrial 3D laser scanning was used to capture the existing condition of the apartment with high precision.
Collected Data
- point cloud of both levels
- full geometry of interior spaces
- architectural elements and connections between floors
Measurement Accuracy
±4 mm
This accuracy allows the data to be used directly for design and construction planning without additional manual measurements.
Methodology
The project was executed using a structured Scan-to-BIM workflow adapted for residential interiors.
1. Laser Scanning
Scanning of both apartment levels was performed with carefully planned station placement to ensure full coverage of all rooms and vertical connections.
2. Point Cloud Processing
Collected data was processed, registered, and aligned into a single coordinated point cloud.
3. Data Verification
Quality checks were performed to ensure accuracy and completeness of captured geometry.
4. Documentation Preparation
Based on the point cloud, detailed 2D drawings were created, including floor plans and key sections.
5. Optional 3D Modeling
A 3D model can be developed based on the point cloud for use in BIM platforms such as Revit or ArchiCAD.
6. Final Export
All deliverables were prepared in the required formats and coordinated with the client.
Results
Point Cloud
A complete and accurate digital representation of the apartment’s as-built condition, ready for further design and planning.
2D Documentation
- floor plans for both levels
- sections and elevations
- delivered in DWG and PDF
3D Model (Optional)
- compatible with Revit, ArchiCAD, and other BIM platforms
Technical Report
Includes methodology, accuracy parameters, and scanning data required for project verification.
Value for the Client
Accurate Base for Design
The point cloud and drawings provide a precise foundation for interior design and renovation planning.
Reduced Risk of Errors
Accurate measurements eliminate discrepancies between design and real conditions, reducing costly mistakes during implementation.
Efficient Project Workflow
The digital model allows designers and engineers to work remotely without repeated site visits.
Fast Turnaround
Optimized scanning and processing ensured fast delivery while maintaining high accuracy and detail.






