CAD to BIM Conversion Services in UAE for Existing Drawings and Building Documentation
CAD to BIM conversion services in UAE help transform existing 2D drawings, legacy CAD files, and fragmented project documentation into structured BIM models for renovation, redesign, coordination, and building data management. ScanM2 supports CAD to BIM workflows for architectural, structural, and MEP documentation, creating BIM-ready project models that are more suitable for modern design development and multidisciplinary coordination.
Contact Us Now for a Free Consultation!
Converting Legacy CAD Drawings into BIM-Ready Project Models
Many projects still rely on 2D CAD drawings created at different stages of design, construction, or later documentation updates. In practice, these files are often incomplete, inconsistent, or difficult to use for coordinated engineering work. CAD to BIM conversion helps turn legacy documentation into a more structured digital model environment.
This type of conversion is especially relevant for:
- existing buildings
- renovation and refurbishment projects
- redesign and modernization works
- technical documentation upgrades
- multidisciplinary coordination
- projects that require model-based development instead of isolated 2D files
By converting legacy drawings into BIM-ready project models, teams can work with better-organized geometry, more consistent documentation, and a stronger base for planning and coordination.
When CAD to BIM Conversion Is Required
CAD to BIM conversion is typically required when a project can no longer rely only on separate 2D files and needs a structured model for further development.
Typical situations include:
- outdated project drawings that do not support coordinated workflows
- legacy CAD documentation prepared over multiple project phases
- renovation projects that require more reliable model structure
- redevelopment of existing buildings
- preparation for discipline coordination
- transition from drawing-based work to model-based delivery
- upgrading documentation for architectural, structural, and MEP use
For projects based on measured site conditions rather than only archived drawings, the workflow may also connect with Scan to BIM services where physical geometry must be incorporated into the BIM environment.
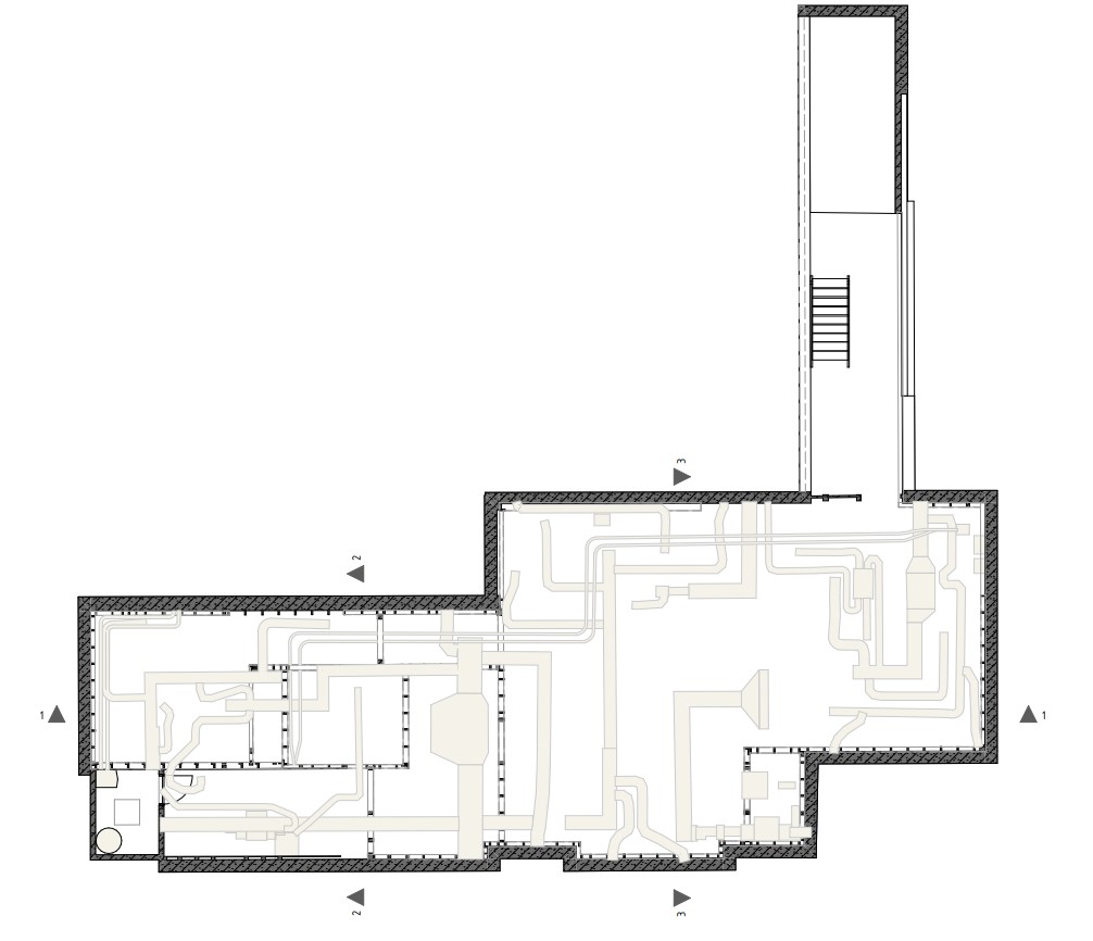
What Can Be Converted from CAD to BIM

CAD to BIM conversion can be applied to a wide range of project documentation depending on the available source files and the intended BIM output.
Typical source information may include:
- floor plans
- sections
- elevations
- reflected ceiling plans
- architectural layout drawings
- structural CAD drawings
- MEP drafting packages
- discipline-specific detail drawings
- legacy AutoCAD documentation sets
The output may range from basic model reconstruction to more developed BIM geometry for coordination and documentation. Where required, the converted model can also support further BIM modeling for architectural, structural, or MEP project development.
CAD to BIM Deliverables and Model Structure
| Input documentation | BIM output | Typical use |
|---|---|---|
| 2D floor plans | Structured building model | Renovation, planning, design development |
| Sections and elevations | Coordinated geometry reference | Documentation upgrade, multidisciplinary review |
| Structural CAD drawings | Structural BIM model elements | Engineering coordination, redesign |
| MEP CAD documentation | BIM-ready system model base | Technical coordination, renovation |
| Legacy drawing packages | Unified BIM environment | Existing building modernization |
How Our CAD to BIM Workflow Is Organized
A typical CAD to BIM workflow includes the following stages:
- Review of source CAD documentation
- Assessment of drawing consistency and completeness
- Definition of BIM conversion scope and model structure
- Architectural, structural, or MEP model development
- Coordination review and internal quality control
- Final BIM delivery based on project requirements
This workflow helps convert drawing-based documentation into a more usable BIM environment for design teams, consultants, contractors, and project stakeholders.
CAD to BIM for Renovation, Redesign, and Existing Building Upgrades
CAD to BIM is especially valuable for projects involving renovation, existing buildings, and documentation upgrades. In such cases, 2D files often represent different project phases and may not be suitable for coordinated design decisions without restructuring.
A BIM-based model environment helps support:
- renovation planning
- redesign of building zones
- coordination between disciplines
- modernization of legacy documentation
- transition to model-based project delivery
- future updates linked to as-built documentation
When project information must be aligned with measured site data, supporting services such as 3D laser scanning and point cloud processing may also become part of the wider workflow.
Typical CAD to BIM Project Types
Examples of CAD to BIM conversion projects for existing buildings, renovation packages, and multidisciplinary documentation upgrades.
Why Choose CAD to BIM Conversion Services in UAE
Companies use CAD to BIM services when they need to move from fragmented 2D documentation to a more structured and coordinated model environment.
Key advantages include:
- conversion of outdated drawings into usable BIM structure
- improved coordination across architecture, structure, and MEP
- better consistency of project documentation
- support for renovation and redesign workflows
- more efficient model-based development
- reduced dependence on disconnected CAD files
- improved readiness for modern BIM project delivery
For projects based on legacy documentation, CAD to BIM conversion creates a stronger foundation for coordination, review, and future development.
Need CAD to BIM Conversion Support in UAE?
ScanM2 provides CAD to BIM conversion services in UAE for projects that require structured model development from legacy drawings, 2D CAD files, and existing building documentation. We support architectural, structural, and MEP workflows for renovation, redesign, coordination, and BIM-ready project delivery across the UAE.
FAQ
What is CAD to BIM conversion?
CAD to BIM conversion is the process of transforming 2D CAD drawings or legacy digital documentation into a structured BIM model that can be used for coordination, renovation, design development, and project documentation.
What types of drawings can be converted into BIM models?
Floor plans, sections, elevations, structural drawings, MEP documentation, and other legacy CAD files can be converted into BIM models depending on project scope and the required level of model development.
Do you convert AutoCAD files into BIM models?
Yes. CAD to BIM workflows can include the conversion of AutoCAD-based documentation into BIM-ready models for architectural, structural, and MEP use.
Is CAD to BIM useful for renovation projects?
Yes. CAD to BIM is particularly useful for renovation and existing building projects where legacy 2D documentation must be reorganized into a more coordinated model environment.
Can CAD to BIM support further Revit-based development?
Yes. A converted BIM model can provide a structured base for further Revit-based coordination, design development, and documentation workflows.









