As-Built Drawings for Machine-Building Plants and Machinery Installations
Machine-building plants are dynamic environments where equipment, production lines, and workshop layouts frequently change. As machinery is upgraded, relocated, or replaced, original design documentation quickly becomes outdated. Accurate as-built drawings for machine-building plants ensure that the real configuration of production workshops, machinery installations, and equipment layouts is properly documented.
Reliable as-built documentation for machinery manufacturing facilities provides verified equipment positions, machine installation coordinates, and facility layout verification based on field measurements of machinery. These drawings help engineers plan modernization projects, equipment upgrades, and infrastructure maintenance while ensuring accurate technical records of the plant.
Why Accurate As-Built Documentation Is Critical for Machine-Building Facilities
Machine-building plants often operate for decades while undergoing constant technical upgrades. As new equipment is installed and production lines are modified, workshop layouts may change significantly.
Without updated as-built plans for machine-building enterprises, engineering teams may face several operational risks:
- outdated factory drawings that no longer match the real layout
- incorrect equipment locations in production workshops
- difficulties planning machinery upgrades
- safety risks related to heavy machinery installation
Accurate machinery plant as-built drawings document verified equipment positions, equipment foundations, and structural elements within production workshops. This information is essential for maintaining safe operations and supporting engineering decisions.
In complex industrial facilities this documentation is often supported by point cloud modeling from laser scanning , which helps capture precise spatial data of machinery layouts and structural elements.
Engineering Challenges in Documenting Machinery Manufacturing Plants
Creating reliable as-built documentation for mechanical engineering plants requires addressing several industry-specific challenges.
Heavy Machinery Foundations
Large machine tools and presses are installed on reinforced concrete bases. Accurate machine foundation as-built drawings verify foundation geometry, anchor bolt locations, and installation elevations.
Overhead Crane Systems
Many production workshops rely on cranes for handling heavy components. Documenting crane system as-built drawings and overhead crane beam drawings ensures correct alignment of crane rails and support beams.
Dense Equipment Layouts
Machine-building facilities often contain tightly arranged equipment. Equipment layout as-built drawings must document precise spacing, maintenance access zones, and operational clearances.
Production Line Infrastructure
Automated manufacturing systems require strict alignment. Accurate production line layout drawings confirm machine installation coordinates and production line alignment.
Structural Steel Workshops
Manufacturing halls are supported by steel frames and structural columns. Steel structure workshop drawings and manufacturing hall layout drawings help coordinate machinery installations with structural elements.
Our As-Built Documentation Workflow for Machinery Plants
The development of engineering as-built drawings for machinery installations follows a structured process.
1. Facility Survey and Field Measurements
Engineers perform field measurements of machinery, structural elements, crane beams, and workshop boundaries.
2. Equipment Layout Verification
Specialists confirm machine installation coordinates and verify the actual positions of machines and production lines.
3. CAD Drawing Development
Collected data is converted into technical drawings, including:
- machine tool layout drawings
- machinery installation drawings
- production workshop drawings
- equipment layout as-built drawings
For complex industrial facilities, this process may also involve scan-to-BIM modeling for industrial facilities , allowing engineers to generate coordinated digital models of production halls and machinery installations.
4. Engineering Documentation Validation
Final documentation undergoes dimension checks and coordination verification to ensure technical accuracy.
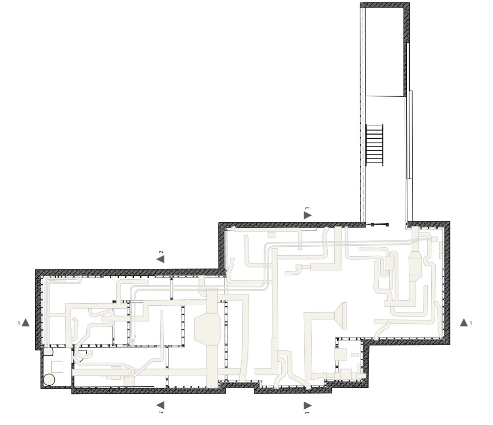
Examples of As-Built Drawings and Engineering Documentation
Examples of As-Built Drawings
What Is Included in Machinery Plant As-Built Drawings
Comprehensive as-built documentation for machine-building facilities typically includes several categories of technical drawings describing both building infrastructure and installed equipment.
Production Workshop Layouts
Production workshop drawings document the geometry of manufacturing halls, structural columns, and service zones within machine-building facilities.
Equipment Layout Drawings
Detailed equipment layout as-built drawings show the exact positions of machine tools, assembly stations, and industrial equipment inside the production area.
Machine Foundation Drawings
Precise machine foundation as-built drawings verify foundation dimensions, anchor points, and installation elevations supporting heavy equipment.
Crane System Drawings
Crane system as-built drawings and overhead crane beam drawings document crane rails, support structures, and lifting system alignment across production workshops.
Structural Steel Framework
Structural diagrams illustrate steel columns, trusses, and load-bearing elements documented through steel structure workshop drawings.
Engineering Problems As-Built Drawings Help Solve
Professional as-built drawing services for machinery plants help resolve many operational and engineering issues.
Common problems addressed:
- incorrect equipment positions
- machinery installation errors
- conflicts between production line equipment
- coordination issues with structural steel frameworks
- insufficient safety clearances around machines
Accurate industrial equipment layout documentation allows engineers to detect these problems and plan corrective actions.
Practical Applications for Machine-Building Enterprises
Updated as-built documentation contractor for machine-building facilities supports many industrial tasks.
Typical applications include:
- equipment relocation projects
- machinery upgrades
- production line modernization
- plant reconstruction projects
- factory expansion planning
Reliable heavy machinery installation drawings and equipment layout documentation help engineers design improvements without disrupting existing infrastructure.
As-Built Drawings as a Basis for Modernization and Engineering Planning
For machine-building enterprises undergoing technological upgrades, accurate documentation is essential. Machinery plant as-built drawings provide verified information about production workshops, equipment foundations, crane systems, and facility infrastructure.
Using precise as-built documentation for machinery manufacturing facilities, engineering teams can plan modernization programs, redesign production lines, and implement facility upgrades while maintaining technical accuracy.
FAQ
What are as-built drawings for machine-building plants?
As-built drawings for machine-building plants are technical documents that reflect the actual layout of machinery installations, production workshops, equipment foundations, and structural elements after construction or equipment installation.
Why are as-built drawings important for machinery manufacturing facilities?
They provide accurate documentation of equipment locations, machine installation coordinates, and facility infrastructure, which is essential for maintenance, modernization, and engineering planning.
What types of equipment are documented in machinery plant as-built drawings?
Typical documentation includes machine tools, production line equipment, heavy industrial machinery, crane systems, and equipment foundations.
When are as-built drawings required in machine-building enterprises?
They are commonly required during plant modernization, equipment relocation, factory expansion, and production line upgrades.
What information is included in machinery installation as-built drawings?
These drawings usually contain equipment layout plans, machine foundation details, crane system layouts, structural steel documentation, and verified equipment positions obtained through field measurements of machinery.








