Creating Accurate As-Built Drawings for Residential Renovations
Modern home renovations require a solid foundation in the form of precise documentation of existing conditions. Without it, design errors, delays, and unnecessary costs are far more likely. Thanks to advanced 3D laser scanning and BIM modeling technologies, it’s possible to create highly accurate as-built drawings that ensure complete control over the renovation process.
Why Accurate As-Built Drawings Matter in Home Renovations
When planning a residential renovation, starting with reliable and up-to-date documentation is critical. As-built drawings — also known as as-built documentation — record the actual dimensions, layouts, and systems of a property after construction or during its current condition. Unlike original design plans, they reflect all modifications made over the years, whether intentional or as a result of on-site changes.
For homeowners, architects, and contractors, accurate as-built drawings are invaluable because they:
- Provide a trustworthy basis for renovation design.
- Prevent costly mistakes caused by outdated or incomplete plans.
- Support permit applications and compliance with building codes.
- Facilitate precise cost estimating and material ordering.
The Role of 3D Laser Scanning in As-Built Documentation
Traditional measuring methods can be slow and prone to errors — especially in older homes with irregular layouts. 3D laser scanning for houses solves these issues by capturing millions of measurement points in minutes, producing a point cloud that represents every visible surface in exact scale.
Tools for Creating Accurate As-Built Drawings
Producing high-quality residential as-built drawings demands the right combination of technology and expertise:
- Laser Scanners – Capture millions of points per second with exceptional accuracy, ideal for both compact homes and complex multi-story residences.
- BIM Software – Transforms raw scan data into interactive, data-rich 3D models, enhancing precision and enabling better collaboration across all stakeholders.
- Point Cloud Processing – Converts laser scan data into CAD or BIM formats for detailed analysis and documentation.
- Drone Technology – For properties with challenging access or large plots, drones provide aerial imagery and measurements, enriching the final as-built documentation.
Case Study: Luxury Estate in Los Angeles
One example of our residential scanning expertise is the Luxury Estate in Los Angeles project. Our team conducted comprehensive 3D laser scanning of an expansive property, including both the main residence and its surrounding grounds. Using a combination of terrestrial laser scanners and drone-based imaging, we captured every architectural detail — from interior layouts and façade elements to complex rooflines and landscaping features. The resulting point cloud was transformed into an accurate BIM model, providing the client and design team with a precise foundation for future renovations and maintenance.

Typical Workflow for Residential As-Built Documentation
- Project cost and time assessment – Define estimated timelines and budget.
- 3D Laser Scanning – Capture interior, exterior, and site geometry in high detail.
- Data Processing – Create a registered and optimized point cloud.
- BIM Modeling – Develop a parametric Revit as-built model or CAD plans.
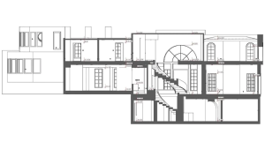
- Drawing Production – Generate residential as-built plans, elevations, and sections from BIM or point cloud for 2D documentation.
- Delivery & Review – Provide editable files, PDFs, and point cloud archives.
Future Trends in Residential As-Built Documentation
The future of as-built precision will continue to evolve with technological innovations:
- AI Integration – Automated detection of structural anomalies and faster quality checks.
- Cloud-Based Collaboration – Real-time sharing and updates to as-built drawings between design, construction, and renovation teams.
- Augmented Reality (AR) – On-site overlay of digital as-built models directly onto the physical environment for enhanced decision-making.
Choosing the Right Partner for As-Built Services
For homeowners and renovation professionals, achieving precise as-built documentation depends on choosing a skilled partner. At scanm2.com, we specialize in delivering residential as-built plans using advanced laser scanning, BIM modeling, and point cloud processing. Our experienced team ensures accuracy, efficiency, and safety in every project phase — from initial surveys to renovation planning.

Conclusion
Precision in as-built documentation is more than a technical requirement — it’s the key to success in home renovation projects. By combining 3D laser scanning, BIM modeling, and the latest advancements in data processing, you can eliminate uncertainty and confidently move forward with your renovation plans. Partner with ScanM2 to experience the transformative benefits of accurate residential as-built drawings.

