Manufacturing facilities and industrial production plants evolve continuously
Manufacturing facilities evolve continuously. Equipment is relocated, production lines are reconfigured, and utility systems are modified to meet operational demands. Over time, discrepancies accumulate between design documentation and actual site conditions. This creates operational risks, increases maintenance costs, and complicates upgrades.
As-built drawings for manufacturing facilities address this gap by providing verified, field-accurate documentation of the current state of factory infrastructure, production systems, and building elements. These deliverables are not generic architectural records—they are technical assets used by engineering, maintenance, and operations teams to support decision-making.
As-built drawing services for manufacturing facilities are used by engineering companies, plant operators, and industrial contractors to support modernization, maintenance, and expansion projects. Accurate factory documentation reduces engineering risks, improves coordination, and ensures reliable decision-making across complex production environments.
Contact Us Now for a Free Consultation!
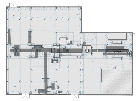
Scope of As-Built Documentation in Manufacturing
Unlike commercial buildings, manufacturing environments require detailed mapping of interconnected systems that directly impact production output. As-built documentation must capture both spatial configuration and functional relationships between components.
Typical scope includes:
- Production line layout documentation (machines, conveyors, robotic cells)
- Structural and architectural elements affecting equipment placement
- Mechanical systems (compressed air, ventilation, process cooling)
- Electrical distribution networks and control panels
- Process piping systems (steam, chemicals, water supply)
- Factory infrastructure elements such as cable trays and service corridors
The output is delivered as factory as-built drawings and structured datasets that reflect actual site conditions with engineering-level precision.

Data Acquisition and Verification
Accurate production facility as-built documentation begins with high-resolution site data capture. Manual measurements are insufficient in facilities with dense equipment and constrained access.
The workflow typically integrates:
- 3D Laser Scanning to capture geometry of equipment, structures, and utilities
- Point Cloud Processing for spatial data consolidation and noise filtering
- Field validation for critical systems such as process piping and electrical routing
To support this stage, services like 3D Laser Scanning, Point Cloud Processing and Scan to BIM are used to convert raw scan data into structured models and drawings.
The result is a coordinated dataset that forms the basis for factory infrastructure as-built drawings.
Key Technical Elements Unique to Manufacturing Facilities
Manufacturing environments introduce technical requirements that differ significantly from other sectors. As-built documentation must explicitly account for:
1. Production Line Geometry and Tolerances
Equipment alignment directly affects product quality. Conveyor systems, CNC machines, and robotic arms require precise positional data. As-built drawings must reflect actual offsets, clearances, and alignment conditions.
2. Process Piping Networks
Production plants often rely on complex piping systems carrying steam, compressed air, chemicals, or cooling fluids. These networks are frequently modified without full documentation updates. Accurate mapping of pipe routing, diameters, and connection points is critical.
3. Electrical and Control Infrastructure
Manufacturing systems depend on distributed control panels, PLC cabinets, and cable routing networks. As-built documentation must include panel locations, cable tray paths, and integration points between equipment and control systems.
These elements define the functional accuracy of manufacturing plant as-built documentation and cannot be generalized across industries.
Deliverables and Documentation Structure
As-built drawing services for manufacturing facilities deliver structured technical documentation used for engineering, maintenance, and operational decision-making.
Typical Deliverables
| Deliverable Type | Description | Application |
| Factory layout documentation | Updated floor plans with equipment placement | Space planning, line reconfiguration |
| Production line layout drawings | Detailed representation of machinery and workflows | Process optimization |
| Industrial facility as-built plans | Structural and architectural documentation | Renovation and expansion |
| MEP system drawings | Mechanical, electrical, and piping systems | Maintenance and troubleshooting |
| Equipment-specific models | Parametric or reference models of key assets | Integration with BIM workflows |
These outputs can be generated through BIM Modeling workflows, enabling integration with digital facility management systems.
Integration with Engineering Workflows
As-built drawings are not static documents. In manufacturing, they serve as a foundation for ongoing engineering processes.
Retrofit and Equipment Installation
When introducing new machinery, engineers rely on accurate factory building documentation to assess spatial constraints, load conditions, and utility availability.
Maintenance Planning
Maintenance teams use industrial workshop as-built drawings to locate components, trace system connections, and plan interventions without disrupting production.
Reverse Engineering
Legacy equipment without documentation can be digitized using Reverse Engineering for Manufacturing Equipment, allowing integration into updated facility layouts.
Digital Twin Development
As-built data enables the creation of digital representations of production environments, supporting simulation and performance analysis.
Challenges Specific to Factory As-Built Documentation
Manufacturing facilities present operational constraints that affect documentation workflows:
- Limited access to active production zones
- Safety restrictions around high-temperature or high-voltage systems
- Frequent layout changes during production cycles
- Dense clustering of equipment and utilities
These factors require a structured approach combining scanning, phased data capture, and coordination with facility operations.
Accuracy Requirements and Standards
The required level of detail in production plant as-built documentation depends on its intended use. For manufacturing environments, accuracy is typically defined by:
- Millimeter-level precision for equipment positioning
- Verified routing for process piping and electrical systems
- Consistent coordinate systems aligned with facility grids
Deliverables must be suitable for direct use in engineering calculations, not just visual reference.
Use Cases in Manufacturing Facilities
Production Line Reconfiguration
Accurate factory layout documentation allows engineers to simulate new configurations before implementation, reducing downtime.
Facility Expansion
When extending production capacity, existing infrastructure must be accurately documented to avoid conflicts with new systems.
Compliance and Audits
Industrial facilities often require up-to-date documentation for safety and regulatory compliance. As-built drawings provide verifiable records of current conditions.
Asset Management
Integration with facility management systems enables tracking of equipment, utilities, and maintenance history.
Conclusion
As-built drawings for manufacturing facilities are technical instruments that reflect the operational reality of production environments. They provide verified, structured documentation of factory infrastructure, enabling informed engineering decisions and reducing operational risks.
Unlike generic building documentation, manufacturing plant as-built documentation must capture the interaction between equipment, utilities, and structural elements with high precision. This requires a combination of advanced data acquisition methods, engineering validation, and integration with digital workflows.
FAQ
What are as-built drawings in a manufacturing facility?
As-built drawings in a manufacturing facility represent the actual configuration of equipment, infrastructure, and systems after installation and modifications. They differ from design drawings by reflecting real site conditions.
Why are as-built drawings important for factories?
They support maintenance, equipment upgrades, and operational planning by providing accurate information about layouts, utilities, and system connections.
How are factory as-built drawings created?
They are typically generated using 3D laser scanning, point cloud processing, and engineering validation, followed by conversion into technical drawings or BIM models.
What level of detail is required?
Manufacturing environments often require high precision, including exact equipment positioning, piping routes, and electrical layouts.
Can as-built documentation be integrated with BIM?
Yes, production facility as-built documentation is often converted into BIM models for use in digital workflows, asset management, and simulation.
How often should as-built drawings be updated?
How often should as-built drawings be updated?
They should be updated after significant changes such as equipment relocation, system upgrades, or facility expansion to maintain accuracy.
